蓝湖郡联排内圈中户,清水看房方便,业主安心卖
-
411万
总价
-
5室2厅
户型
-
250㎡
建筑面积
买房加房产交流群,省钱不踩雷
3000+人正在热聊
-
单价
16440元/平米
- 挂牌价格解析
-
楼层
低楼层/4层
- 咨询楼层
-
套内
248.7㎡
- 咨询套内使用面积
-
楼型
板楼
-
朝向
东南
-
装修
毛坯
-
供暖
暂无数据
-
发布
2022-07-21
-
地铁
暂无数据
-
咨询总首付
首付约136.8万
首付税费及佣金情况 -
深度测评
小区龙湖蓝湖郡东岸(两江新区-鸳鸯)
-
更多
楼户比、楼层高度、交易历史、抵押信息
房源描述(1)
-
核心卖点问经纪人
咨询电话:杜丽娟 没有房产税,纯毛坯清水,门口停1辆车,车库可以停1辆,房子楼间距达到35米
-
业主心态问经纪人
业主诚心出售此房,没有产权纠纷,业主人比较好,素质高,容易沟通,价格还可以商量。
-
小区配套问经纪人
体育场地,恒温游泳池、壁球馆、网球场、篮球场、羽毛球场、健身房、SPA,标准游泳池、网球场、篮球场 交通出行: 蓝湖郡位于金开大道1111号,金山大道与金开大道交汇处。数条城市快速干道构筑畅达交通体系,沿金开大道经金山大道、五童路又可快捷到达渝中区,繁华宁静一线间。
-
服务介绍问经纪人
您好,感谢您浏览我发布的房源,从事房产行业多年,也将长期从事房产行业,对房源特别了解,本着专业的房产知识为您服务,帮您节省时间和精力,希望得到您的信赖.
-
税费分析房贷计算
产权干净,税费清晰,为避免泄露业主信息,欢迎来电咨询了解该房屋详情。
-
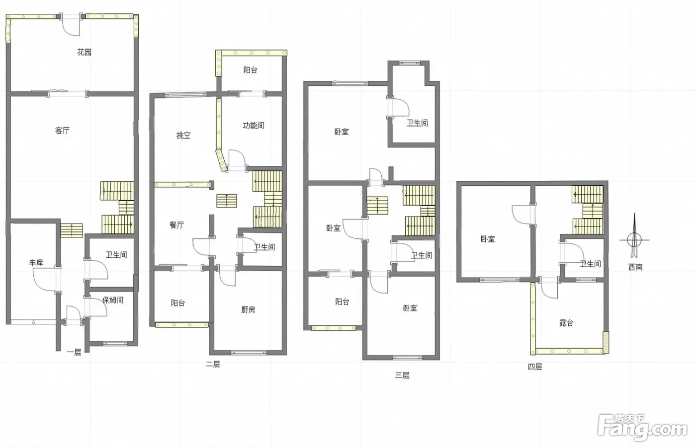
户型解读问经纪人
1600亩原生土地蕴藏万千光华,130亩蓝湖长河般滑开两岸,3000米湖岸线芳草馥馥,秀木葱郁,吐纳着温润清新的空气。当万物隐于暮色苍穹,闭上眼,你也能触碰到世界的美
周边配套
交通综合评分
查看全部超过重庆52.4%的小区
-
地铁公交
9.0
-
驾车出行
10.0
本月均价 20579元/m²
环比上月 上涨 1.79%
同比去年 上涨 6.48%
猜你喜欢
同小区其它房源
买房加房产交流群,省钱不踩雷
3000+人正在热聊
- 免费咨询
- 专业服务
- 区域解读
- 户型分析

