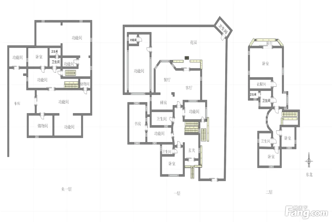
龙湖蓝湖郡东岸6室2厅南
-
1680万
总价
-
6室2厅
户型
-
340.12㎡
建筑面积
买房加房产交流群,省钱不踩雷
3000+人正在热聊
加入群聊
-
单价
49395元/平米
- 挂牌价格解析
-
楼层
2层
- 咨询楼层
-
套内
暂无数据
- 咨询套内使用面积
-
朝向
南
-
装修
其他
-
供暖
暂无数据
-
发布
2025-06-04
-
咨询总首付
首付约557.7万
首付税费及佣金情况 -
深度测评
小区龙湖蓝湖郡东岸(两江新区-鸳鸯)
-
更多
楼户比、楼层高度、交易历史、抵押信息
周边配套
地址:金开大道与龙宁路交口西行90米
交通综合评分
查看全部6.6
“较好”
超过重庆52.4%的小区
-
地铁公交
9.0
-
驾车出行
10.0
猜你喜欢
同小区其它房源
-
10296元/㎡
本月挂牌均价
-
持平
环比上月
买房加房产交流群,省钱不踩雷
3000+人正在热聊
加入群聊
免责声明:房源信息由网站用户提供,其真实性、合法性由信息提供者负责,最终以政府部门登记备案为准。本网站不声明或保证内容之正确性和可靠性,购买该房屋时,请谨慎核查。入学情况仅凭历史经验总结,在此不承诺升学事宜。请您在签订合同之前,切勿支付任何形式的费用,以免上当受骗。



