临崖叠下带地下室 视野开阔 无遮挡
-
235万
总价
-
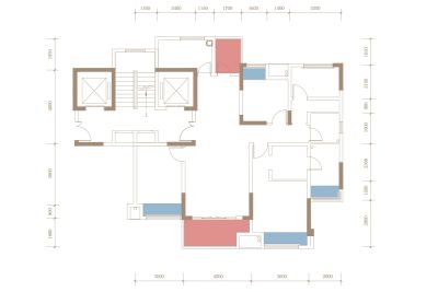
4室2厅
户型
-
152㎡
建筑面积
买房加房产交流群,省钱不踩雷
3000+人正在热聊
加入群聊
-
单价
15461元/平米
- 挂牌价格解析
-
楼层
6层
- 咨询楼层
-
套内
暂无数据
- 咨询套内使用面积
-
楼型
塔楼
-
朝向
东南
-
装修
毛坯
-
供暖
暂无数据
-
发布
2024-04-14
-
地铁
距9号线宝圣湖站约1129米
-
咨询总首付
首付约72.6万
首付税费及佣金情况 -
深度测评
小区复地君屿墅(两江新区-回兴)
-
更多
楼户比、楼层高度、交易历史、抵押信息
周边配套
地址:回兴立交旁
交通综合评分
查看全部7.0
“较好”
超过重庆82.8%的小区
-
地铁公交
10.0
-
驾车出行
10.0
猜你喜欢
同小区其它房源
户型齐全,主打明厨,客厅朝南,独立衣帽间四居
复地君屿墅户型主要有130平-137平的明厨,客厅朝南,独立衣帽间的四居 、116平-117平的户型方正,采光充足的三居 。
*获取完整户型报告,同时会有免费语音讲解服务
-
10617元/㎡
本月挂牌均价
-
0.32%
环比上月
买房加房产交流群,省钱不踩雷
3000+人正在热聊
加入群聊
免责声明:房源信息由网站用户提供,其真实性、合法性由信息提供者负责,最终以政府部门登记备案为准。本网站不声明或保证内容之正确性和可靠性,购买该房屋时,请谨慎核查。入学情况仅凭历史经验总结,在此不承诺升学事宜。请您在签订合同之前,切勿支付任何形式的费用,以免上当受骗。



