正看巴国城公园的精装四房两卫,3梯5户配置,南北通透户型
-
95万
总价
-
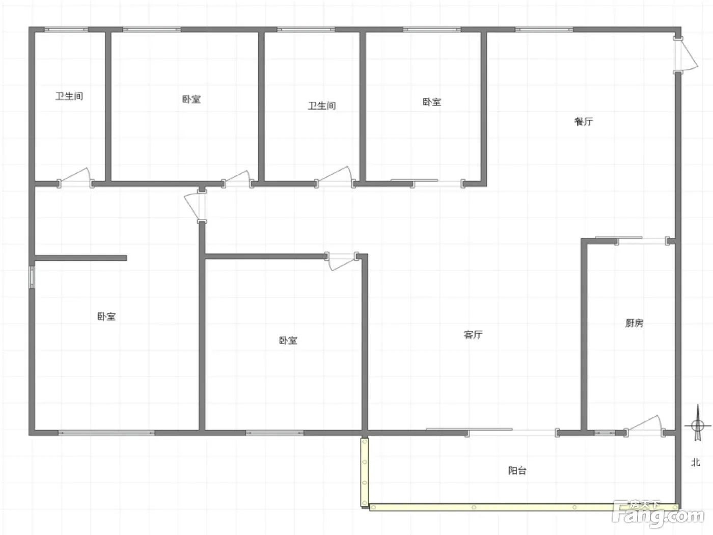
4室2厅2卫
户型
-
124㎡
建筑面积
买房加房产交流群,省钱不踩雷
3000+人正在热聊
加入群聊
-
单价
7661元/平米
- 挂牌价格解析
-
楼层
中层/30层
- 咨询楼层
-
套内
暂无数据
- 咨询套内使用面积
-
楼型
板楼
-
朝向
南
-
装修
豪华装修
-
发布
2026-04-26
-
地铁
距环线二郎站约1071米
-
咨询总首付
首付约25.1万
首付税费及佣金情况 -
深度测评
小区巴国龙庭(九龙坡-二郎)
-
更多
楼户比、楼层高度、交易历史、抵押信息
房源描述(1)
周边配套
地址:九龙园区红狮大道8号(巴国城旁)
交通综合评分
查看全部8.2
“较好”
超过重庆98.7%的小区
-
地铁公交
10.0
-
驾车出行
10.0
-
城际交通
4.0
本月均价 11456元/m²
环比上月 上涨 5.09%
同比去年 上涨 3.76%
猜你喜欢
同小区其它房源
户型齐全,主打明卫,双阳台三居
巴国龙庭户型主要有84平-218平的明卫,双阳台的三居 、60平-269平的户型方正,明厨,双卧朝南,主卧朝南的二居 、48平-185平的户型方正,双阳台的一居 。
*获取完整户型报告,同时会有免费语音讲解服务
-
8226元/㎡
本月挂牌均价
-
0.19%
环比上月
买房加房产交流群,省钱不踩雷
3000+人正在热聊
加入群聊
- 免费咨询
- 专业服务
- 区域解读
- 户型分析
免责声明:房源信息由网站用户提供,其真实性、合法性由信息提供者负责,最终以政府部门登记备案为准。本网站不声明或保证内容之正确性和可靠性,购买该房屋时,请谨慎核查。入学情况仅凭历史经验总结,在此不承诺升学事宜。请您在签订合同之前,切勿支付任何形式的费用,以免上当受骗。

