(新上房源)精装洋房,好楼层,,直接拎包入住,看房方便!
-
60.8万
总价
-
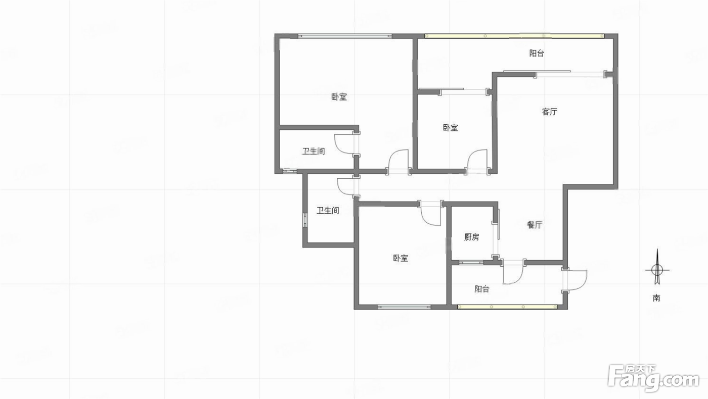
3室2厅2卫
户型
-
108.22㎡
建筑面积
买房加房产交流群,省钱不踩雷
3000+人正在热聊
加入群聊
-
单价
5618元/平米
- 挂牌价格解析
-
楼层
高层/8层
- 咨询楼层
-
套内
暂无数据
- 咨询套内使用面积
-
楼型
板楼
-
朝向
南
-
装修
精装修
-
年代
2021
-
发布
2026-04-17
-
咨询总首付
首付约15.6万
首付税费及佣金情况 -
深度测评
小区重庆奥园天悦湾(两江新区-蔡家)
-
更多
楼户比、楼层高度、交易历史、抵押信息
房源描述(1)
周边配套
地址:香溪路奥园天悦湾
交通综合评分
查看全部5.0
“一般”
超过重庆2.2%的小区
-
地铁公交
5.0
-
驾车出行
10.0
本月均价 7487元/m²
环比上月 上涨 0.38%
同比去年 下跌 10.14%
猜你喜欢
同小区其它房源
户型齐全,主打南北通透,全明格局,户型方正,动静分离三居
重庆奥园天悦湾户型主要有114平-130平的南北通透,全明格局,户型方正,动静分离的三居 、137平-183平的全明格局,户型方正,动静分离的四居 、94平-94平的南北通透,全明格局,户型方正的二居 。
*获取完整户型报告,同时会有免费语音讲解服务
买房加房产交流群,省钱不踩雷
3000+人正在热聊
加入群聊
- 免费咨询
- 专业服务
- 区域解读
- 户型分析
免责声明:房源信息由网站用户提供,其真实性、合法性由信息提供者负责,最终以政府部门登记备案为准。本网站不声明或保证内容之正确性和可靠性,购买该房屋时,请谨慎核查。入学情况仅凭历史经验总结,在此不承诺升学事宜。请您在签订合同之前,切勿支付任何形式的费用,以免上当受骗。

