急售照母山 一线看湖 大联排端户 花园180 视野无遮挡
-
460万
总价
-
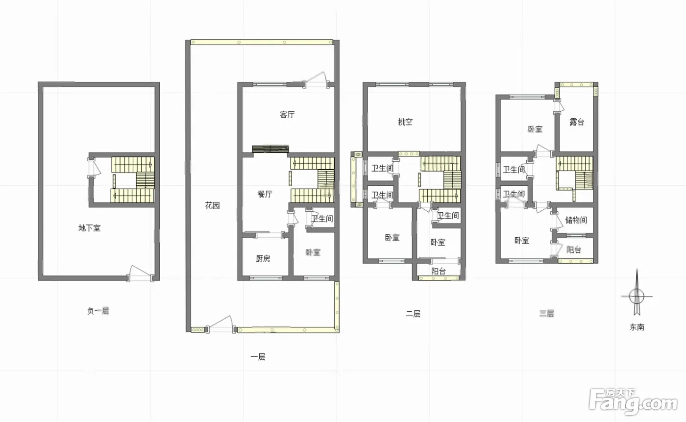
5室3厅5卫
户型
-
386.11㎡
建筑面积
买房加房产交流群,省钱不踩雷
3000+人正在热聊
加入群聊
-
单价
11914元/平米
- 挂牌价格解析
-
楼层
5层
- 咨询楼层
-
套内
暂无数据
- 咨询套内使用面积
-
楼型
独栋
-
朝向
东
-
装修
毛坯
-
年代
2016
-
发布
2026-03-31
-
咨询总首付
首付约153.6万
首付税费及佣金情况 -
深度测评
小区融创凡尔赛花园别墅(两江新区-照母山)
-
更多
楼户比、楼层高度、交易历史、抵押信息
房源描述(1)
-
核心卖点问经纪人
【房源简介】6室4厅6卫,南北通透,户型方正,无浪费面积。每个房间都有良好的通风和采光。房屋朝向良好,视野开阔。 【电梯情况】带电梯,方便快捷,无需担心上下楼梯的不便。 【房屋特色】大平层设计,空间宽敞,适合家庭居住。室内面积335平米,功能分区明确,餐厅客厅可分离,生活动线流畅。 【周边环境】位于融创凡尔赛花园,法式联排别墅端户,享受一线湖景,环境优美,空气清新。 【特别推荐】房屋维护良好,适合家庭长期居住,享受舒适生活。
-
业主心态问经纪人
业主因个人原因,诚心出售该房!房子满2年,留有钥匙在我们公司,随时看房。
-
小区配套问经纪人
位置:小区地理位置佳,绿化率高,居民素质高 配套:有健身器材,小型篮球场,可供小区居民使用 车位:停车位充足,建有地上停车场和地下车库 保安:小区内24保安巡逻
-
服务介绍问经纪人
本人从事房地产多年,公司有大量好房源,欢迎进入我的店铺查看,欢迎随时电话咨询,相信我的专业,为您置业安家保驾护航。
周边配套
地址:渝北照母山植物园旁(星光大道延长线旁)
交通综合评分
查看全部6.2
“较好”
超过重庆40.2%的小区
-
地铁公交
8.0
-
驾车出行
10.0
-
19419元/㎡
本月挂牌均价
-
0.06%
环比上月
买房加房产交流群,省钱不踩雷
3000+人正在热聊
加入群聊
- 免费咨询
- 专业服务
- 区域解读
- 户型分析
免责声明:房源信息由网站用户提供,其真实性、合法性由信息提供者负责,最终以政府部门登记备案为准。本网站不声明或保证内容之正确性和可靠性,购买该房屋时,请谨慎核查。入学情况仅凭历史经验总结,在此不承诺升学事宜。请您在签订合同之前,切勿支付任何形式的费用,以免上当受骗。

