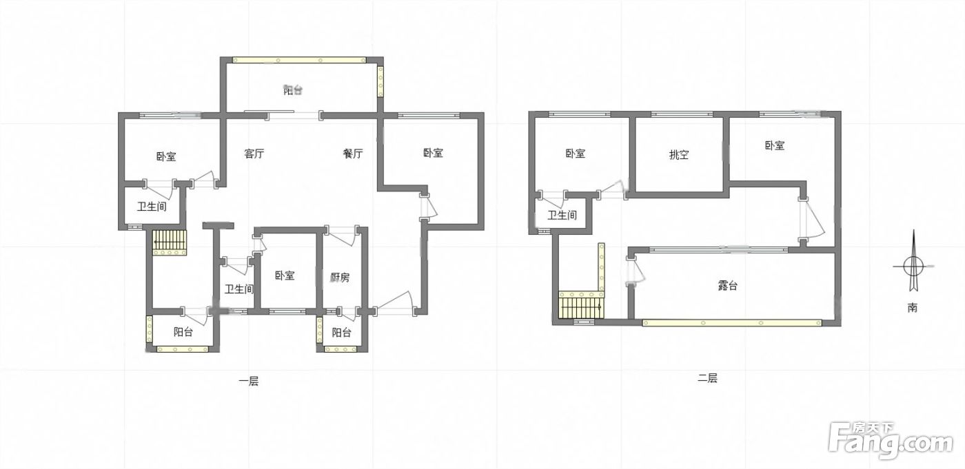
单层140平洋房顶跃 上下三层 层层露台 可改7房 楼下轻轨
-
183万
总价
-
5室2厅2卫
户型
-
197.2㎡
建筑面积
买房加房产交流群,省钱不踩雷
3000+人正在热聊
加入群聊
-
单价
9280元/平米
- 挂牌价格解析
-
楼层
顶层/7层
- 咨询楼层
-
套内
暂无数据
- 咨询套内使用面积
-
楼型
板楼
-
朝向
南
-
装修
毛坯
-
年代
2020
-
发布
2026-01-25
-
地铁
距18号线花溪工业园站约651米
-
咨询总首付
首付约56万
首付税费及佣金情况 -
深度测评
小区华润置地澜山望(巴南-巴滨路)
-
更多
楼户比、楼层高度、交易历史、抵押信息
房源描述(1)
周边配套
地址:巴滨路华润置地澜山望
交通综合评分
查看全部5.0
“一般”
超过重庆56.2%的小区
-
地铁公交
5.0
-
驾车出行
10.0
本月均价 7915元/m²
环比上月 下跌 0.18%
同比去年 下跌 10.21%
猜你喜欢
同小区其它房源
-
8239元/㎡
本月挂牌均价
-
0.05%
环比上月
买房加房产交流群,省钱不踩雷
3000+人正在热聊
加入群聊
- 免费咨询
- 专业服务
- 区域解读
- 户型分析
免责声明:房源信息由网站用户提供,其真实性、合法性由信息提供者负责,最终以政府部门登记备案为准。本网站不声明或保证内容之正确性和可靠性,购买该房屋时,请谨慎核查。入学情况仅凭历史经验总结,在此不承诺升学事宜。请您在签订合同之前,切勿支付任何形式的费用,以免上当受骗。

