金开大道 融创一线看湖类独栋 花园400平
-
1180万
总价
-
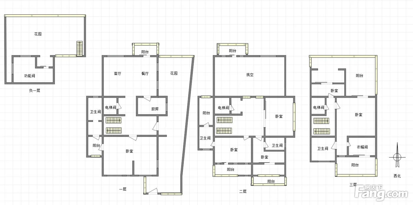
5室3厅4卫
户型
-
376㎡
建筑面积
买房加房产交流群,省钱不踩雷
3000+人正在热聊
加入群聊
-
单价
31383元/平米
- 挂牌价格解析
-
楼层
4层
- 咨询楼层
-
套内
暂无数据
- 咨询套内使用面积
-
楼型
独栋
-
朝向
南
-
装修
精装修
-
发布
2025-07-02
-
地铁
距3号线翠云站约795米
-
咨询总首付
首付约392.3万
首付税费及佣金情况 -
深度测评
小区融创金开融府(两江新区-回兴)
-
更多
楼户比、楼层高度、交易历史、抵押信息
房源描述(1)
-
核心卖点问经纪人
相信为您推荐的这套房子您一定会满意,赶快行动吧,先到先得! 房屋年代∶null,面积∶376.0平方米,朝向∶ 1. 小区配备高端物业管理,让你享受宾至如归的服务; 2. 小区人文素质高,是您的居家的绝佳选择; 3. 小区居住安静舒适,让您拥有高品质的生活环境; 4. 小区绿化率高,绿树成荫鸟语花香让您随时呼吸到新鲜空气。
周边配套
地址:金开大道(轻轨3号线翠云站旁)
交通综合评分
查看全部4.0
“一般”
超过重庆40.0%的小区
-
地铁公交
10.0
猜你喜欢
同小区其它房源
户型齐全,主打餐客分离,独立车库五居
融创金开融府户型主要有186平-256平的餐客分离,独立车库的五居 、178平-220平的明卫,明厨,客厅朝南,全明格局,主卧朝南,双阳台的四居 、179平-179平的明厨,客厅朝南,明卫,主卧朝南的一居 。
*获取完整户型报告,同时会有免费语音讲解服务
-
10617元/㎡
本月挂牌均价
-
0.32%
环比上月
买房加房产交流群,省钱不踩雷
3000+人正在热聊
加入群聊
- 免费咨询
- 专业服务
- 区域解读
- 户型分析
免责声明:房源信息由网站用户提供,其真实性、合法性由信息提供者负责,最终以政府部门登记备案为准。本网站不声明或保证内容之正确性和可靠性,购买该房屋时,请谨慎核查。入学情况仅凭历史经验总结,在此不承诺升学事宜。请您在签订合同之前,切勿支付任何形式的费用,以免上当受骗。

