观音桥商圈 启元 豪宅大平层 全套房设计 带大阳台看中庭景观
-
615万
总价
-
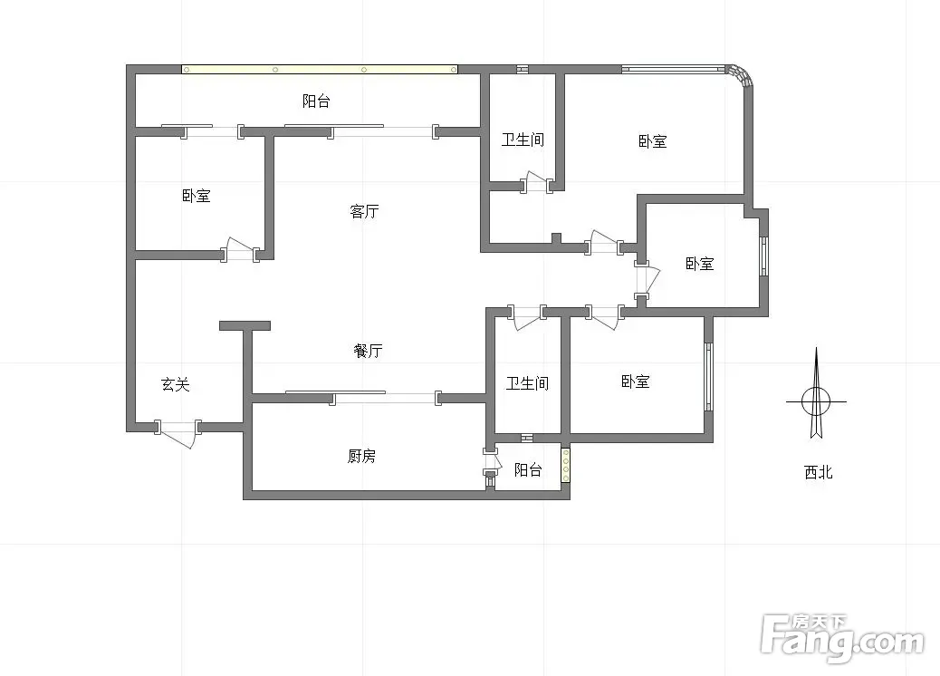
4室2厅2卫
户型
-
163.16㎡
建筑面积
买房加房产交流群,省钱不踩雷
3000+人正在热聊
-
单价
37693元/平米
- 挂牌价格解析
-
楼层
中层/16层
- 咨询楼层
-
套内
162㎡
- 咨询套内使用面积
-
楼型
板楼
-
朝向
南
-
装修
精装修
-
年代
2023
-
发布
2025-06-20
-
地铁
距9号线蚂蝗梁站约293米
-
咨询总首付
首付约204.6万
首付税费及佣金情况 -
深度测评
小区香港置地启元(江北-观音桥)
-
更多
楼户比、楼层高度、交易历史、抵押信息
房源描述(1)
-
核心卖点问经纪人
本人承若所发布房源;真实有校,每周更新,亲自实地拍摄。 1;房屋产权证面积;163平 2;房屋价格;615 3;装修情况 ;开发商豪装 房屋特色介绍; 1;业主诚心出售,看房方便 ,钥匙在手 2;户型方正,朝向,南北,采光充足,看中庭现代园林景观 ,居住舒适。 3;小区是 围合式大中庭,小区里设置得有羽毛球场,篮球场,游泳池,和大片草坪 健身器材,及一些观江景台,小区大片草坪,和一些珍贵树植! 4;周边配套齐全 ,小区自带的有社区底商可满足业主的日需, 5;轻轨线,9号线 ,3号线,距离只有50米出行十分方便。
-
业主心态问经纪人
房东置换,诚心出售,欢迎看房,随时恭候您的到来。
-
小区配套问经纪人
1;户型方正,朝向,南北,采光充足,看中庭精致景观,居住舒适。 2;小区是现代式园林景观 围合式大中庭,小区里设置得有羽毛球场,篮球场,游泳池,和大片草坪 健身器材,及一些观景台,小区大片草坪,和一些珍贵树植! 3;周边配套齐全 ,小区自带的有社区底商可满足业主的日需, 4;轻轨线,9号线3号线 ,距离只有50米出行十分方便。
-
服务介绍问经纪人
【1】您所看到的房源为二手房。 【2】全程接送,陪同看房,全城看房,为您送上轻松愉快的看房旅程。 【3】经纪人看房不会产生任何费用 【4】本人专注二手和一手新房183 2330 8932易可添加号
-
税费分析房贷计算
个税:首套房成交价1%, 契税:以家庭为单位,首套140㎡及以下成交价1%,140㎡以上成交价1.5%。 二套140㎡及以下成交价1%,140㎡以上成交价2%。 三套及以上成交价3%。 大修基金:80元/㎡(按照建筑面积收取)详情咨询电话:183 2330 8932(微X同号)
-
户型解读问经纪人
正规的大四房 。横厅布局 ,餐客分离 动静分区,私密性好。
周边配套
交通综合评分
查看全部超过重庆0.0%的小区
-
地铁公交
10.0
-
驾车出行
10.0
-
城际交通
4.0
本月均价 34209元/m²
环比上月 下跌 5.15%
同比去年 下跌 7.86%
猜你喜欢
同小区其它房源
户型齐全,主打户型方正,动静分离三居
香港置地启元户型主要有124平-156平的户型方正,动静分离的三居 、165平-245平的全明格局,户型方正的四居 。
*获取完整户型报告,同时会有免费语音讲解服务
买房加房产交流群,省钱不踩雷
3000+人正在热聊
- 免费咨询
- 专业服务
- 区域解读
- 户型分析


