豪装大端户,单层面积150平米 小区环境很好品质很高
-
410.6万
总价
-
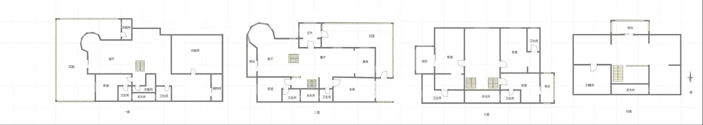
5室3厅6卫
户型
-
386.95㎡
建筑面积
买房加房产交流群,省钱不踩雷
3000+人正在热聊
加入群聊
-
单价
10611元/平米
- 挂牌价格解析
-
楼层
3层
- 咨询楼层
-
套内
暂无数据
- 咨询套内使用面积
-
楼型
独栋
-
朝向
南
-
装修
精装修
-
发布
2025-09-07
-
地铁
距4号线唐家沱站约734米
-
咨询总首付
首付约136.4万
首付税费及佣金情况 -
深度测评
小区金科太阳海岸(江北-寸滩)
-
更多
楼户比、楼层高度、交易历史、抵押信息
房源描述(1)
-
核心卖点问经纪人
端户,单层面积大,5个套房,带影音室,负一楼下去带花园
周边配套
地址:海尔路988号
交通综合评分
查看全部6.6
“较好”
超过重庆63.8%的小区
-
地铁公交
9.0
-
驾车出行
10.0
猜你喜欢
同小区其它房源
户型齐全,主打明卫,明厨四居
金科太阳海岸户型主要有40平-473平的明卫,明厨的四居 、265平-389平的户型方正的五居 、94平-277平的明厨,明卫,独立衣帽间,双阳台的三居 。
*获取完整户型报告,同时会有免费语音讲解服务
买房加房产交流群,省钱不踩雷
3000+人正在热聊
加入群聊
- 免费咨询
- 专业服务
- 区域解读
- 户型分析
免责声明:房源信息由网站用户提供,其真实性、合法性由信息提供者负责,最终以政府部门登记备案为准。本网站不声明或保证内容之正确性和可靠性,购买该房屋时,请谨慎核查。入学情况仅凭历史经验总结,在此不承诺升学事宜。请您在签订合同之前,切勿支付任何形式的费用,以免上当受骗。

