院子300平 属于您的魔法城堡 太阳海岸4联排 大端户全采光
-
340万
总价
-
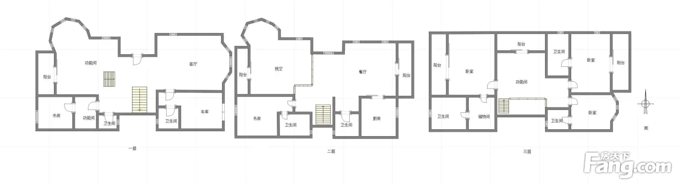
3室2厅5卫
户型
-
378.31㎡
建筑面积
买房加房产交流群,省钱不踩雷
3000+人正在热聊
-
单价
8987元/平米
- 挂牌价格解析
-
楼层
1层
- 咨询楼层
-
套内
暂无数据
- 咨询套内使用面积
-
楼型
独栋
-
朝向
南
-
装修
毛坯
-
发布
2025-07-18
-
地铁
距4号线唐家沱站约734米
-
咨询总首付
首付约112.9万
首付税费及佣金情况 -
深度测评
小区金科太阳海岸(江北-寸滩)
-
更多
楼户比、楼层高度、交易历史、抵押信息
房源描述(1)
-
核心卖点问经纪人
相信为您推荐的这套房子您一定会满意,赶快行动吧,先到先得! 房屋年代∶2018,面积∶378.31平方米,朝向∶ 1. 小区配备高端物业管理,让你享受宾至如归的服务; 2. 小区人文素质高,是您的居家的绝佳选择; 3. 小区居住安静舒适,让您拥有高品质的生活环境; 4. 小区绿化率高,绿树成荫鸟语花香让您随时呼吸到新鲜空气。
-
业主心态问经纪人
【1]、业主置换,诚心出售,产权清晰,无纠纷,随时过户,价格可谈,随时实地看房! [2]、全程陪同看房,买房是大事,实地考察很重要。 【3]、有更多的房源供您参考:我珍视每一份嘱托,不发布虚假房源、不虚报价格、不吃差价。
-
小区配套问经纪人
1.小区24安保巡逻,人脸识别,刷卡入户。 2.小区配备高端物业管理,让你享受宾至如归的服务 3.小区人文素质高,是您的居家的绝佳选择 4.小区居住安静舒适,让您拥有高品质的生活环境 5.小区绿化率高,绿树成荫鸟语花香让您随时呼吸到新鲜空气
-
服务介绍问经纪人
1:我期待为我的客户、提供高质服务。 2:给予客户以安心;我珍视每一份嘱托。 3:不发布虚假房源、不虚报价格、一心一意竭诚为您。 4:交易不成,费用全退。 谢谢您的本次浏览,祝您生活愉快!
-
税费分析房贷计算
佣.金:100w以内佣.金3666,100w以上佣.金6666. 建面140平以下: 首套契税1% 二套1%,三套及以上3% 建面140平以上:首套契税1.5%,二套2%,三套及以上3% 个人所得税1%或差额的20%,满五免征,
周边配套
交通综合评分
查看全部超过重庆63.8%的小区
-
地铁公交
9.0
-
驾车出行
10.0
猜你喜欢
同小区其它房源
户型齐全,主打明卫,明厨四居
金科太阳海岸户型主要有40平-473平的明卫,明厨的四居 、265平-389平的户型方正的五居 、94平-277平的明厨,明卫,独立衣帽间,双阳台的三居 。
*获取完整户型报告,同时会有免费语音讲解服务
买房加房产交流群,省钱不踩雷
3000+人正在热聊
- 免费咨询
- 专业服务
- 区域解读
- 户型分析

