曼哈顿城一期3室2厅1卫南朝向68.00万元出售
-
68万元
总价
-
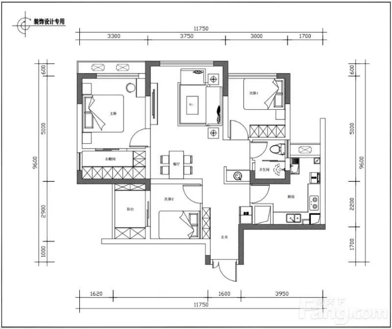
3室2厅1卫
户型
-
101㎡
建筑面积
买房加房产交流群,省钱不踩雷
3000+人正在热聊
加入群聊
-
单价
6733元/平米
- 挂牌价格解析
-
楼层
顶层/33层
- 咨询楼层
-
套内
暂无数据
- 咨询套内使用面积
-
朝向
南
-
发布
2026-01-24
-
地铁
暂无数据
-
咨询总首付
首付约20.1万
首付税费及佣金情况 -
深度测评
小区曼哈顿城一期(巴南-李家沱)
-
更多
楼户比、楼层高度、交易历史、抵押信息
业主自评
-
Fridy
加入房天下5701天
接电时间:09:00-22:00
房屋是位于曼哈顿城一期的精装修三室两厅一卫,面积100.37平米,两梯四户,属于端户,经过精心设计,户型方正实用,布局合理,采光通风都非常好,而且私密性很强。房子视野开阔,无遮挡,朝南朝向,阳光充足,冬暖夏凉。小区配套齐全,生活便利,周边交通、教育、商业一应俱全。房子配有电梯,直达车库,上下楼非常方便,精装修保养得很好,拎包即可入住,省心省力,不可多得的好房子!
房屋是位于曼哈顿城一期的精装修三室两厅一卫,面积100.37平米,两梯四户,属于端户,经过精心设计,户型方正实用,布局合理,采光通风都非常好,而且私密性很强。房子视野开阔,无遮挡,朝南朝向,阳光充足,冬暖夏凉。小区配套齐全,生活便利,周边交通、教育、商业一应俱全。房子配有电梯,直达车库,上下楼非常方便,精装修保养得很好,拎包即可入住,省心省力,不可多得的好房子!
周边配套
地址:巴南李家沱渝南大道8号
交通综合评分
查看全部7.0
“较好”
超过重庆48.9%的小区
-
地铁公交
10.0
-
驾车出行
10.0
本月均价 6327元/m²
环比上月 上涨 9.26%
同比去年 上涨 0.03%
猜你喜欢
同小区其它房源
-
6921元/㎡
本月挂牌均价
-
0.57%
环比上月
买房加房产交流群,省钱不踩雷
3000+人正在热聊
加入群聊
联系业主
免责声明:房源信息由网站用户提供,其真实性、合法性由信息提供者负责,最终以政府部门登记备案为准。本网站不声明或保证内容之正确性和可靠性,购买该房屋时,请谨慎核查。入学情况仅凭历史经验总结,在此不承诺升学事宜。请您在签订合同之前,切勿支付任何形式的费用,以免上当受骗。

