双福双岛湖洋房顶跃带花园,通透阳光房86万实得面积200多
-
86万元
总价
-
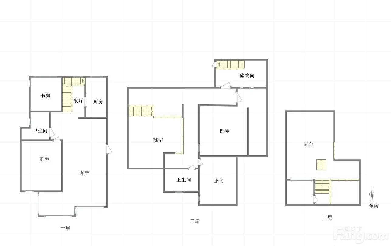
4室2厅3卫
户型
-
158㎡
建筑面积
买房加房产交流群,省钱不踩雷
3000+人正在热聊
加入群聊
-
单价
5443元/平米
- 挂牌价格解析
-
楼层
顶层/6层
- 咨询楼层
-
套内
暂无数据
- 咨询套内使用面积
-
朝向
东南
-
年代
2019
-
发布
2026-03-23
-
地铁
距江跳线享堂站约615米
-
咨询总首付
首付约29.3万
首付税费及佣金情况 -
深度测评
小区双岛湖御园(江津-江津)
-
更多
楼户比、楼层高度、交易历史、抵押信息
业主自评
-
张姐
加入房天下2587天
接电时间:08:00-23:00
这房子在双岛湖御园,津马大道1号,地段安静又方便。158平的大四居,东南朝向,采光特别好,每天阳光洒进来,屋里亮堂堂的。 户型很实用,4室2厅3卫,房间宽敞,布局合理,主卧带独立卫浴,私密性很好。客厅连着阳台,通风流畅,夏天不用开空调都凉快。厨房空间大,储物方便,一家人做饭聚餐都很舒适。 小区环境不错,绿化好,平时散步遛弯很惬意。周边生活配套齐全,买菜、购物、吃饭都很近,住着省心。 价格实在,92.6万就能拿下这么大的房子,性价比很高。诚心出售,欢迎看房,住进来就知道有多舒服了!
这房子在双岛湖御园,津马大道1号,地段安静又方便。158平的大四居,东南朝向,采光特别好,每天阳光洒进来,屋里亮堂堂的。 户型很实用,4室2厅3卫,房间宽敞,布局合理,主卧带独立卫浴,私密性很好。客厅连着阳台,通风流畅,夏天不用开空调都凉快。厨房空间大,储物方便,一家人做饭聚餐都很舒适。 小区环境不错,绿化好,平时散步遛弯很惬意。周边生活配套齐全,买菜、购物、吃饭都很近,住着省心。 价格实在,92.6万就能拿下这么大的房子,性价比很高。诚心出售,欢迎看房,住进来就知道有多舒服了!
周边配套
地址:重庆江津双福新区津马大道1号
交通综合评分
查看全部6.2
“较好”
超过重庆33.1%的小区
-
地铁公交
8.0
-
驾车出行
10.0
本月均价 4716元/m²
环比上月 上涨 6.96%
同比去年 下跌 1.75%
猜你喜欢
同小区其它房源
户型齐全,主打二居
双岛湖御园户型主要有65平-85平的的二居 、89平-118平的双阳台,主卧朝南的三居 、78平-78平的明卫,双阳台的一居 。
*获取完整户型报告,同时会有免费语音讲解服务
-
4406元/㎡
本月挂牌均价
-
0.27%
环比上月
买房加房产交流群,省钱不踩雷
3000+人正在热聊
加入群聊
联系业主
免责声明:房源信息由网站用户提供,其真实性、合法性由信息提供者负责,最终以政府部门登记备案为准。本网站不声明或保证内容之正确性和可靠性,购买该房屋时,请谨慎核查。入学情况仅凭历史经验总结,在此不承诺升学事宜。请您在签订合同之前,切勿支付任何形式的费用,以免上当受骗。

