|豪华大毛坯|好楼层亮堂|单价5000|现房可按揭|随时看房
-
56.5万
总价
-
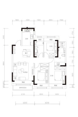
3室2厅2卫
户型
-
110㎡
建筑面积
买房加房产交流群,省钱不踩雷
3000+人正在热聊
-
单价
5136元/平米
- 挂牌价格解析
-
楼层
中层/18层
- 咨询楼层
-
套内
暂无数据
- 咨询套内使用面积
-
楼型
板楼
-
朝向
南北
-
装修
毛坯
-
年代
2022
-
发布
2025-02-21
-
咨询总首付
首付约17.8万
首付税费及佣金情况 -
深度测评
小区中邑尚都城(二道-八里堡)
-
更多
楼户比、楼层高度、交易历史、抵押信息
房源描述(1)
-
核心卖点问经纪人
【房屋简介】三室两厅两卫,正规三居,南北通透,朝向良好。基础设施完善,生活便捷。餐厅客厅分离,空间布局合理,生活舒适。楼层佳,电梯房,出入方便。朝向南北,空气流通,通风良好。110平米,空间宽敞。周边商圈多,购物就医娱乐方便。
-
业主心态问经纪人
房东置换,诚心出售,价格可以再谈,欢迎随时看房随时恭候。
-
小区配套问经纪人
位置:小区地理位置佳,绿化率高,居民素质高 配套:有健身器材,小型篮球场,可供小区居民使用 车位:停车位充足,建有地上停车场和地下车库 保安:小区内24保安巡逻
-
服务介绍问经纪人
本人从事房多年,公司有大量好房源,欢迎进入我的店铺查看,欢迎随时电话咨询,相信我的专业,为您置业安家保驾护航。
周边配套
交通综合评分
查看全部超过长春0.0%的小区
-
地铁公交
5.0
-
城际交通
4.5
本月均价 9385元/m²
环比上月 上涨 2%
同比去年 上涨 2.8%
猜你喜欢
同小区其它房源
户型齐全,主打南北通透,全明格局三居
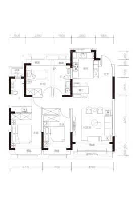
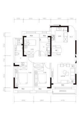
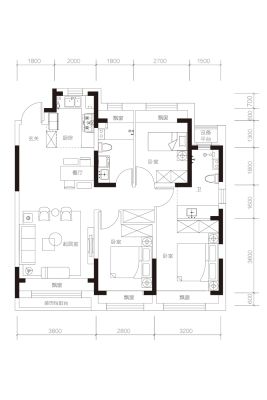
中邑尚都城户型主要有110平-110平的南北通透,全明格局的三居 、72平-89平的户型方正,采光充足的二居 、64平-64平的采光充足,卧室朝南的一居 。
*获取完整户型报告,同时会有免费语音讲解服务
-
6551元/㎡
本月挂牌均价
-
0.26%
环比上月
买房加房产交流群,省钱不踩雷
3000+人正在热聊
- 免费咨询
- 专业服务
- 区域解读
- 户型分析


