新雅中街41号 2室2厅 东南
-
69.8万
总价
-
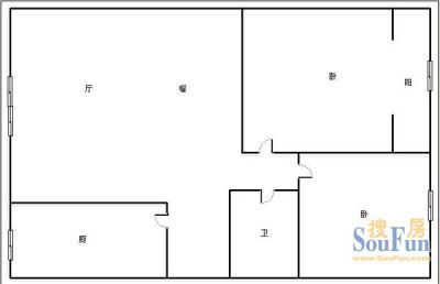
2室2厅
户型
-
72.31㎡
建筑面积
买房加房产交流群,省钱不踩雷
3000+人正在热聊
加入群聊
-
单价
9653元/平米
- 挂牌价格解析
-
楼层
高楼层/6层
- 咨询楼层
-
套内
暂无数据
- 咨询套内使用面积
-
楼型
板楼
-
朝向
东南
-
装修
其他
-
供暖
自供暖
-
年代
2004
-
发布
2025-12-09
-
地铁
距8号线庆安站约990米
-
咨询总首付
首付约18.4万
首付税费及佣金情况 -
深度测评
小区新雅中街41号院(武侯-新双楠)
-
更多
楼户比、楼层高度、交易历史、抵押信息
-
核验码
20241039766
周边配套
地址:高新区新雅中街41号
交通综合评分
查看全部7.0
“较好”
超过成都16.8%的小区
-
地铁公交
10.0
-
驾车出行
10.0
本月均价 10436元/m²
环比上月 上涨 0.61%
同比去年 下跌 7.98%
猜你喜欢
同小区其它房源
户型齐全,主打户型方正,明厨,明卫,客厅朝南,全明格局二居
新雅中街41号院户型主要有72平-73平的户型方正,明厨,明卫,客厅朝南,全明格局的二居 、39平-40平的户型方正,明厨的一居 。
*获取完整户型报告,同时会有免费语音讲解服务
-
16447元/㎡
本月挂牌均价
-
0.67%
环比上月
买房加房产交流群,省钱不踩雷
3000+人正在热聊
加入群聊
免责声明:房源信息由网站用户提供,其真实性、合法性由信息提供者负责,最终以政府部门登记备案为准。本网站不声明或保证内容之正确性和可靠性,购买该房屋时,请谨慎核查。入学情况仅凭历史经验总结,在此不承诺升学事宜。请您在签订合同之前,切勿支付任何形式的费用,以免上当受骗。



