滨河苑小区 3室2厅 东南
-
86万
总价
-
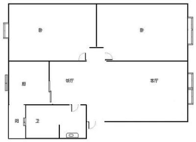
3室2厅
户型
-
126.49㎡
建筑面积
买房加房产交流群,省钱不踩雷
3000+人正在热聊
加入群聊
-
单价
6799元/平米
- 挂牌价格解析
-
楼层
中楼层/7层
- 咨询楼层
-
套内
117.19㎡
- 咨询套内使用面积
-
楼型
板楼
-
朝向
东南
-
装修
其他
-
供暖
暂无数据
-
年代
2000
-
发布
2025-04-26
-
地铁
距2号线龙泉驿站约514米
-
咨询总首付
首付约26.5万
首付税费及佣金情况 -
深度测评
小区滨河苑(龙泉驿-滨河)
-
更多
楼户比、楼层高度、交易历史、抵押信息
-
核验码
20251575268
周边配套
地址:保安寺路78号
交通综合评分
查看全部6.6
“较好”
超过成都95.4%的小区
-
地铁公交
9.0
-
驾车出行
10.0
本月均价 7298元/m²
环比上月 下跌 2.64%
同比去年 下跌 3.53%
猜你喜欢
同小区其它房源
户型齐全,主打明卫,客厅朝南三居
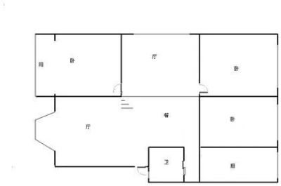
滨河苑户型主要有110平-126平的明卫,客厅朝南的三居 、83平-85平的明厨,双阳台的二居 、175平-180平的户型方正,明卫,客厅朝南,双阳台的四居 。
*获取完整户型报告,同时会有免费语音讲解服务
-
6680元/㎡
本月挂牌均价
-
0.34%
环比上月
买房加房产交流群,省钱不踩雷
3000+人正在热聊
加入群聊
免责声明:房源信息由网站用户提供,其真实性、合法性由信息提供者负责,最终以政府部门登记备案为准。本网站不声明或保证内容之正确性和可靠性,购买该房屋时,请谨慎核查。入学情况仅凭历史经验总结,在此不承诺升学事宜。请您在签订合同之前,切勿支付任何形式的费用,以免上当受骗。



