急105万可按揭!仅契税!人居都市阳光9
-
120万
总价
-
4室2厅2卫
户型
-
161.08㎡
建筑面积
买房加房产交流群,省钱不踩雷
3000+人正在热聊
-
单价
7450元/平米
- 挂牌价格解析
-
楼层
中层/14层
- 咨询楼层
-
套内
160.08㎡
- 咨询套内使用面积
-
楼型
板楼
-
朝向
东南
-
装修
精装修
-
年代
2010
-
发布
2025-08-19
-
咨询总首付
首付约35.8万
首付税费及佣金情况 -
深度测评
小区人居都市阳光(双流-双流城区)
-
更多
楼户比、楼层高度、交易历史、抵押信息
-
核验详情
核验码20240832742
房源描述(1)
-
核心卖点问经纪人
此房,捡漏空间大。户包入住!可按揭贷款!一套房子只服务一位客户!
-
业主心态问经纪人
1、每套房子都有适合它的主人, 希望此房的新主人就是您; 2、如果此房不合适也没关系,可以给您推荐其他适合的房子,随时欢迎电话联系
-
小区配套问经纪人
周边配套成熟多个商超和公共交通设施,具体可以参考地图
-
服务介绍问经纪人
本人2002年开始从业房地产中介服务,成熟稳重,因为有我让您购房变得简单
-
税费分析房贷计算
成都不超过140平米首套二套读书契税1%超过140平米首套1.5%二套2%含三套伙子多套都是3%个税满2年1%不满2年有5.3%的高税
-
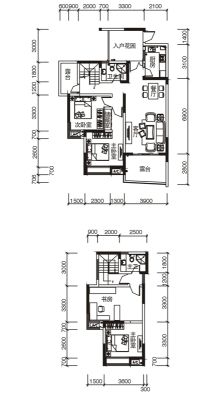
户型解读问经纪人
房屋拥有相对宽松的尺寸,布局通透,动静分离,设计豪华
周边配套
交通综合评分
查看全部超过成都43.8%的小区
-
地铁公交
5.0
-
驾车出行
10.0
本月均价 11664元/m²
环比上月 下跌 0.33%
同比去年 下跌 4.22%
猜你喜欢
同小区其它房源
户型齐全,主打主卧朝南,户型方正,明卫,客厅朝南三居
人居都市阳光户型主要有105平-220平的主卧朝南,户型方正,明卫,客厅朝南的三居 、60平-61平的户型方正,明卫,客厅朝南,主卧朝南的一居 、60平-97平的户型方正,明卫的二居 。
*获取完整户型报告,同时会有免费语音讲解服务
-
9921元/㎡
本月挂牌均价
-
0.08%
环比上月
买房加房产交流群,省钱不踩雷
3000+人正在热聊
- 免费咨询
- 专业服务
- 区域解读
- 户型分析


