新出!联排带电梯!实得面积大!带前花园!安静位置!
-
660万
总价
-
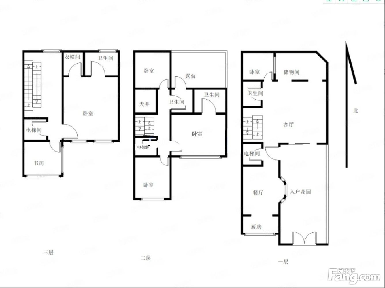
5室2厅4卫
户型
-
380㎡
建筑面积
买房加房产交流群,省钱不踩雷
3000+人正在热聊
加入群聊
-
单价
17368元/平米
- 挂牌价格解析
-
楼层
3层
- 咨询楼层
-
套内
290㎡
- 咨询套内使用面积
-
楼型
独栋
-
朝向
南
-
装修
毛坯
-
年代
2016
-
发布
2025-06-26
-
地铁
距5号线民乐站约807米
-
咨询总首付
首付约193.2万
首付税费及佣金情况 -
深度测评
小区美城悦荣府别墅(天府新区-华阳)
-
更多
楼户比、楼层高度、交易历史、抵押信息
-
核验详情
核验码20240959474
房源描述(1)
-
核心卖点问经纪人
靓点一:联排别墅,南北通透,采光好; 靓点二:中庭位置,安静宜居,带独立电梯; 靓点三:地上三层 地下一层,带2个车库,每层空间带独立花园和露台; 更多好房请点击我的头像,喜欢哪套随时咨询,我将竭诚为您服务。
-
业主心态问经纪人
业主心态 业主心态 业主心态 1、人在成都,房产证在手,权属清晰; 2、钥匙放在公司,方便客户看房; 3、置换大房子,诚心出售,希望诚心客户看房,看房后给业主反馈。
-
小区配套问经纪人
小区地理位置佳,绿化环境优越整洁,居民素质高,物业管理完善,适宜居住
-
服务介绍问经纪人
服务介绍 服务介绍 服务介绍 本人从事房地产多年,公司有大量好房源,欢迎进入我的店铺查看,欢迎随时电话咨询,相信我的专业,为您置业安家保驾护航。
-
税费分析房贷计算
关于本房的税费信息情况,请电话联系我,我将详细的为您讲解!
-
户型解读问经纪人
房屋拥有相对宽松的尺寸,布局通透,动静分离,设计豪华
周边配套
地址:天府新城剑南大道333号
交通综合评分
查看全部7.0
“较好”
超过成都51.2%的小区
-
地铁公交
10.0
-
驾车出行
10.0
户型齐全,主打四居
美城悦荣府别墅户型主要有380平-430平的的四居 、305平-370平的露台,主卧带卫,户型方正,全明格局,干湿分离的五居 。
*获取完整户型报告,同时会有免费语音讲解服务
-
11399元/㎡
本月挂牌均价
-
0.75%
环比上月
买房加房产交流群,省钱不踩雷
3000+人正在热聊
加入群聊
- 免费咨询
- 专业服务
- 区域解读
- 户型分析
免责声明:房源信息由网站用户提供,其真实性、合法性由信息提供者负责,最终以政府部门登记备案为准。本网站不声明或保证内容之正确性和可靠性,购买该房屋时,请谨慎核查。入学情况仅凭历史经验总结,在此不承诺升学事宜。请您在签订合同之前,切勿支付任何形式的费用,以免上当受骗。


