清华坊,前庭后院双花园【中式复古联排别墅】南2.5环
-
1750万
总价
-
4室2厅3卫
户型
-
332.61㎡
建筑面积
买房加房产交流群,省钱不踩雷
3000+人正在热聊
加入群聊
-
单价
52614元/平米
- 挂牌价格解析
-
楼层
1层
- 咨询楼层
-
套内
暂无数据
- 咨询套内使用面积
-
楼型
独栋
-
朝向
南
-
装修
精装修
-
年代
2006
-
发布
2025-06-03
-
地铁
距5号线神仙树站约407米
-
咨询总首付
首付约510.6万
首付税费及佣金情况 -
深度测评
小区清华坊(高新-紫荆)
-
更多
楼户比、楼层高度、交易历史、抵押信息
-
核验详情
核验码20240834648
房源描述(1)
-
核心卖点问经纪人
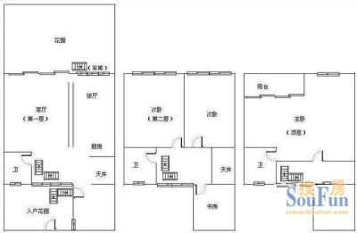
小区介绍 清华坊建成于2003年,小区为中式复古庭院纯联排别墅,耐旧。一共133栋,几乎每栋门前都有一颗古木,物业费3.8元/平米,每套房子都有两个花园,前庭后院, 灰瓦白墙。 户型介绍 共4层,地下一层,地面3层。负一楼是地下室和车库,车库能停两辆车。一楼为客厅、餐厅、厨房等活动区域,另外有一间卧室可做老人房或客房。二楼3间卧室2个卫生间。三楼整层都是大主卧,可自主设计书房和衣帽间,3楼还有两个露台 税费解析 房子是商品房,全款核税价约40000/平,满二年 首套契税1.5%,二套2%
-
业主心态问经纪人
房东置换,诚心出售,可以再谈,欢迎看房,随时恭候。
-
小区配套问经纪人
小区地理位置佳,绿化环境优越整洁,居民素质高,物业管理完善,适宜居住
-
服务介绍问经纪人
本人从事房地产多年,公司有大量好房源,欢迎进入我的店铺查看,欢迎随时电话咨询,相信我的专业,为您置业安家保驾护航。
-
税费分析房贷计算
关于本房的税费信息情况,请电话联系我,我将详细的为您讲解!
周边配套
地址:神仙树南路53号
交通综合评分
查看全部7.0
“较好”
超过成都44.8%的小区
-
地铁公交
10.0
-
驾车出行
10.0
-
14779元/㎡
本月挂牌均价
-
0.02%
环比上月
买房加房产交流群,省钱不踩雷
3000+人正在热聊
加入群聊
- 免费咨询
- 专业服务
- 区域解读
- 户型分析
免责声明:房源信息由网站用户提供,其真实性、合法性由信息提供者负责,最终以政府部门登记备案为准。本网站不声明或保证内容之正确性和可靠性,购买该房屋时,请谨慎核查。入学情况仅凭历史经验总结,在此不承诺升学事宜。请您在签订合同之前,切勿支付任何形式的费用,以免上当受骗。


