大山子北里1室1厅南
-
150万
总价
-
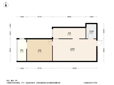
1室1厅1卫
户型
-
24.86㎡
建筑面积
买房加房产交流群,省钱不踩雷
3000+人正在热聊
加入群聊
-
单价
60338元/平米
- 挂牌价格解析
-
楼层
中楼层/4层
- 咨询楼层
-
套内
暂无数据
- 咨询套内使用面积
-
楼型
板楼
-
朝向
南
-
装修
简装
-
供暖
集中供暖
-
年代
1950
-
发布
2026-01-11
-
地铁
距14号线高家园站约568米
-
咨询总首付
首付约50.6万
首付税费及佣金情况 -
深度测评
小区大山子北里(朝阳-大山子)
-
更多
楼户比、楼层高度、交易历史、抵押信息
周边配套
地址:酒仙桥北路路口以南130米
交通综合评分
查看全部7.0
“较好”
超过北京86.2%的小区
-
地铁公交
10.0
-
驾车出行
10.0
本月均价 42664元/m²
环比上月 下跌 1.49%
同比去年 下跌 7.22%
猜你喜欢
同小区其它房源
户型齐全,主打明厨,双卧朝南,主卧朝南二居
大山子北里户型主要有48平-67平的明厨,双卧朝南,主卧朝南的二居 、58平-90平的明厨,双阳台的三居 、25平-61平的明厨的一居 。
*获取完整户型报告,同时会有免费语音讲解服务
-
56503元/㎡
本月挂牌均价
-
1.24%
环比上月
买房加房产交流群,省钱不踩雷
3000+人正在热聊
加入群聊
免责声明:房源信息由网站用户提供,其真实性、合法性由信息提供者负责,最终以政府部门登记备案为准。本网站不声明或保证内容之正确性和可靠性,购买该房屋时,请谨慎核查。入学情况仅凭历史经验总结,在此不承诺升学事宜。请您在签订合同之前,切勿支付任何形式的费用,以免上当受骗。



