上海沙龙~三期两居~通地下车库~满五唯一~全明格局
-
518万
总价
-
2室2厅
户型
-
95.61㎡
建筑面积
买房加房产交流群,省钱不踩雷
3000+人正在热聊
-
单价
54179元/平米
- 挂牌价格解析
-
楼层
低楼层/9层
- 咨询楼层
-
套内
暂无数据
- 咨询套内使用面积
-
楼型
板楼
-
朝向
南北
-
装修
精装
-
供暖
集中供暖
-
年代
2003
-
发布
2026-01-08
-
咨询总首付
首付约205.6万
首付税费及佣金情况 -
深度测评
小区上海沙龙(大兴-亦庄)
-
更多
楼户比、楼层高度、交易历史、抵押信息
房源描述(1)
-
核心卖点问经纪人
相信为您推荐的这套房子您一定会满意,赶快行动吧,先到先得! 房屋年代∶2006,面积∶96.0平方米,朝向∶南北 1. 小区配备高端物业管理,让你享受宾至如归的服务; 2. 小区人文素质高,是您的居家的绝佳选择; 3. 小区居住安静舒适,让您拥有高品质的生活环境; 4. 小区绿化率高,绿树成荫鸟语花香让您随时呼吸到新鲜空气。
-
小区配套问经纪人
小区为板式多层建筑,一梯两户带电梯,堪称北京无障碍化社区典范。现代智能化的社区配套,电话、电视、宽带入户;门禁卡系统,可视对讲;水、电、煤气、IC卡计量等。小区周边配套设施齐备,有1.89万平方米的邻里中心位于小区的东北角,同仁医院,二中国际学校,二十一世纪双语幼儿园,可满足居民日常生活娱乐需要。小区周边有多条公交线路通往市区,更为居民出行提供了方便。
周边配套
交通综合评分
查看全部超过北京38.7%的小区
-
地铁公交
9.0
-
驾车出行
7.0
本月均价 52898元/m²
环比上月 下跌 3.64%
同比去年 下跌 7.49%
猜你喜欢
同小区其它房源
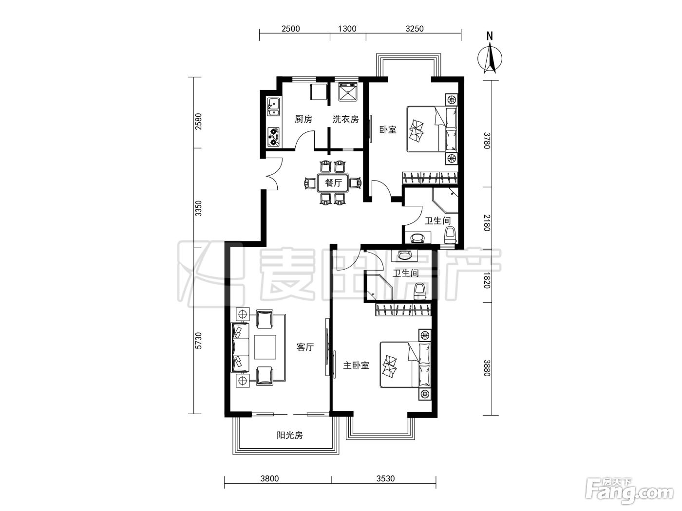
户型齐全,主打明厨,明卫,双阳台,主卧朝南三居
上海沙龙户型主要有112平-206平的明厨,明卫,双阳台,主卧朝南的三居 、85平-122平的户型方正,明厨,双阳台,主卧朝南的二居 、43平-60平的户型方正,明厨的一居 。
*获取完整户型报告,同时会有免费语音讲解服务
-
47645元/㎡
本月挂牌均价
-
0.02%
环比上月
买房加房产交流群,省钱不踩雷
3000+人正在热聊
- 免费咨询
- 专业服务
- 区域解读
- 户型分析

