金台园 3室1厅 南 北
-
158万
总价
-
3室1厅
户型
-
72.94㎡
建筑面积
买房加房产交流群,省钱不踩雷
3000+人正在热聊
-
单价
21662元/平米
- 挂牌价格解析
-
楼层
高楼层/6层
- 咨询楼层
-
套内
暂无数据
- 咨询套内使用面积
-
楼型
板楼
-
朝向
南北
-
装修
简装
-
供暖
集中供暖
-
年代
1994
-
发布
2025-11-05
-
地铁
暂无数据
-
咨询总首付
首付约53万
首付税费及佣金情况 -
深度测评
小区金台园(怀柔-怀柔)
-
更多
楼户比、楼层高度、交易历史、抵押信息
房源描述(2)
-
核心卖点问经纪人
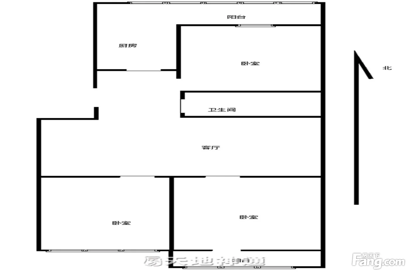
这套位于金台园小区的三居室住宅,建筑面积72.94平米,南北通透的朝向保证了良好的采光和通风效果。作为1995年建成的满五房源,产权清晰,交易税费优惠。房屋位于6层建筑的高层位置,简装修状态便于新业主按需改造。 户型设计为实用的3室1厅1卫布局,附带厨房和阳台,满足家庭多样化居住需求。当前挂牌总价145万元,折合单价19879元/平米,在怀柔城区钓鱼台村兴怀大街北这个位置具有不错的性价比。小区周边生活配套成熟,交通便利,是刚需购房者的优质选择。
-
核心卖点问经纪人
相信为您推荐的这套房子您一定会满意,赶快行动吧,先到先得! 房屋年代∶2006,面积∶73.01平方米,朝向∶南北 1. 小区配备高端物业管理,让你享受宾至如归的服务; 2. 小区人文素质高,是您的居家的绝佳选择; 3. 小区居住安静舒适,让您拥有高品质的生活环境; 4. 小区绿化率高,绿树成荫鸟语花香让您随时呼吸到新鲜空气。
周边配套
交通综合评分
查看全部超过北京59.8%的小区
-
地铁公交
5.0
-
驾车出行
10.0
本月均价 23929元/m²
环比上月 下跌 0.28%
同比去年 下跌 13.5%
猜你喜欢
同小区其它房源
户型齐全,主打户型方正,双阳台,双卧朝南三居
金台园户型主要有73平-126平的户型方正,双阳台,双卧朝南的三居 、106平-108平的户型方正,明厨,双阳台的二居 、134平-197平的明厨,户型方正,客厅朝南,双阳台的四居 。
*获取完整户型报告,同时会有免费语音讲解服务
买房加房产交流群,省钱不踩雷
3000+人正在热聊
- 免费咨询
- 专业服务
- 区域解读
- 户型分析



