马连洼街道,16号线地铁站旁,春晖园精装1居
-
385万
总价
-
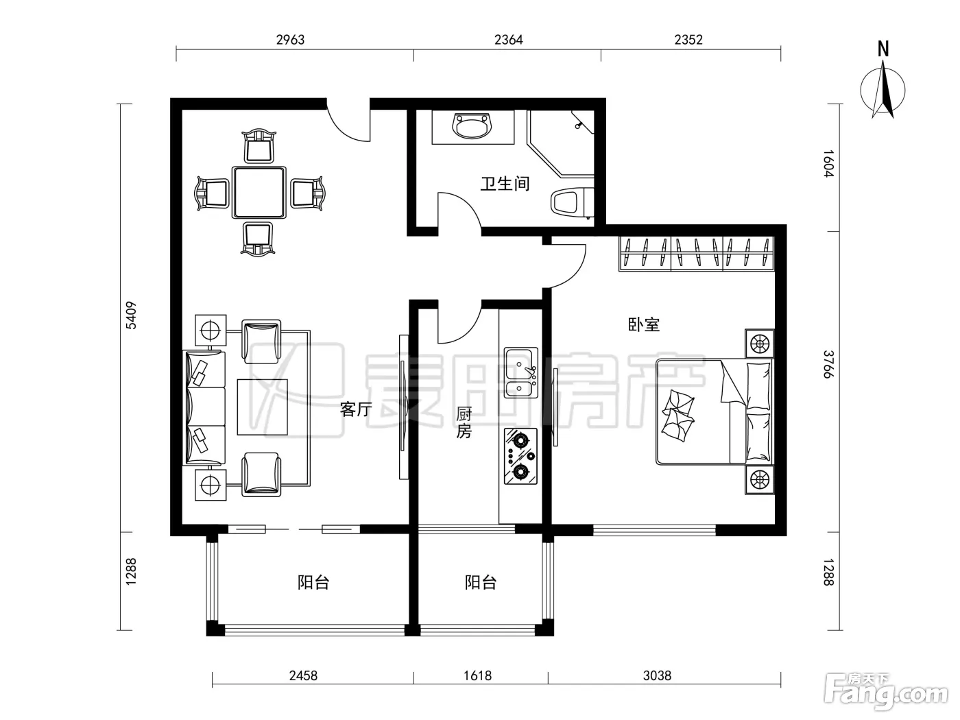
1室1厅1卫
户型
-
56.37㎡
建筑面积
买房加房产交流群,省钱不踩雷
3000+人正在热聊
-
单价
68299元/平米
- 挂牌价格解析
-
楼层
中楼层/6层
- 咨询楼层
-
套内
50.82㎡
- 咨询套内使用面积
-
楼型
板楼
-
朝向
南
-
装修
精装
-
供暖
自供暖
-
年代
2003
-
发布
2025-10-26
-
地铁
距16号线西北旺站约1048米
-
咨询总首付
首付约129.1万
首付税费及佣金情况 -
深度测评
小区百旺新城春晖园(海淀-西北旺)
-
更多
楼户比、楼层高度、交易历史、抵押信息
房源描述(3)
-
核心卖点问经纪人
相信为您推荐的这套房子您一定会满意,赶快行动吧,先到先得! 房屋年代∶2004年,房屋面积∶56.37平方米,朝向∶正南 1. 小区配备良好物业管理,让你享受宾至如归的服务; 2. 小区人文素质高,是您的居家的品质选择; 3. 小区环境安静舒适,让您拥有高品质的生活环境; 4. 小区绿化高,绿树成荫鸟语花香让您随时呼吸到新鲜空气。
-
小区配套问经纪人
春晖园社区成熟,环境优雅,美观大方,生态良好,邻里和睦,祥和文明,康乐和谐。内部管理完善,居住人群文化素质层次高,稳定,地理环境优越,交通便利,周边配套设施完善,各种档次的饭店、酒楼、、文化活动馆等休闲场所应有尽有,满足生活所需。
周边配套
交通综合评分
查看全部超过北京96.0%的小区
-
地铁公交
8.0
-
驾车出行
10.0
本月均价 60721元/m²
环比上月 上涨 0.79%
同比去年 下跌 23.09%
猜你喜欢
同小区其它房源
户型齐全,主打户型方正,明厨,客厅朝南,主卧朝南三居
百旺新城春晖园户型主要有76平-94平的户型方正,明厨,客厅朝南,主卧朝南的三居 、55平-85平的户型方正,明厨,客厅朝南的二居 、56平-57平的主卧朝南的一居 。
*获取完整户型报告,同时会有免费语音讲解服务
-
60823元/㎡
本月挂牌均价
-
0.28%
环比上月
买房加房产交流群,省钱不踩雷
3000+人正在热聊
- 免费咨询
- 专业服务
- 区域解读
- 户型分析


