三环边木樨园·南木樨园·2室·1厅
-
208万
总价
-
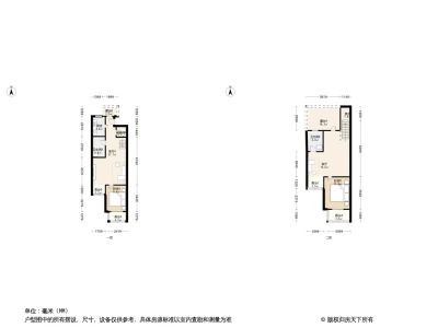
2室1厅1卫
户型
-
61.83㎡
建筑面积
买房加房产交流群,省钱不踩雷
3000+人正在热聊
加入群聊
-
单价
33641元/平米
- 挂牌价格解析
-
楼层
中楼层/16层
- 咨询楼层
-
套内
暂无数据
- 咨询套内使用面积
-
楼型
塔楼
-
朝向
东北
-
装修
精装
-
供暖
集中供暖
-
年代
1990
-
发布
2025-09-21
-
地铁
距8号线南段海户屯站约457米
-
咨询总首付
首付约59.8万
首付税费及佣金情况 -
深度测评
小区南木樨园(丰台-木樨园)
-
更多
楼户比、楼层高度、交易历史、抵押信息
周边配套
地址:南三环中路木樨园桥东南
交通综合评分
查看全部7.0
“较好”
超过北京45.9%的小区
-
地铁公交
10.0
-
驾车出行
6.0
-
城际交通
4.0
本月均价 34870元/m²
环比上月 下跌 2.65%
同比去年 下跌 15.7%
猜你喜欢
同小区其它房源
户型齐全,主打明厨二居
南木樨园户型主要有47平-133平的明厨的二居 、56平-103平的户型方正,明厨的三居 、37平-56平的主卧朝南的一居 。
*获取完整户型报告,同时会有免费语音讲解服务
-
39918元/㎡
本月挂牌均价
-
0.02%
环比上月
买房加房产交流群,省钱不踩雷
3000+人正在热聊
加入群聊
免责声明:房源信息由网站用户提供,其真实性、合法性由信息提供者负责,最终以政府部门登记备案为准。本网站不声明或保证内容之正确性和可靠性,购买该房屋时,请谨慎核查。入学情况仅凭历史经验总结,在此不承诺升学事宜。请您在签订合同之前,切勿支付任何形式的费用,以免上当受骗。



