丰和园2室2厅南
-
1220万
总价
-
2室2厅
户型
-
93.34㎡
建筑面积
买房加房产交流群,省钱不踩雷
3000+人正在热聊
-
单价
130705元/平米
- 挂牌价格解析
-
楼层
高楼层/26层
- 咨询楼层
-
套内
暂无数据
- 咨询套内使用面积
-
楼型
板楼
-
朝向
南
-
装修
精装
-
供暖
集中供暖
-
年代
2009
-
发布
2025-09-19
-
地铁
距10号线太阳宫站约323米
-
咨询总首付
首付约857万
首付税费及佣金情况 -
深度测评
小区太阳星城丰和园(朝阳-太阳宫)
-
更多
楼户比、楼层高度、交易历史、抵押信息
房源描述(5)
-
核心卖点问经纪人
相信为您推荐的这套房子您一定会满意,赶快行动吧,先到先得! 房屋年代∶2010,面积∶93.48平方米,朝向∶南 1. 小区配备高端物业管理,让你享受宾至如归的服务; 2. 小区人文素质高,是您的居家的绝佳选择; 3. 小区居住安静舒适,让您拥有高品质的生活环境; 4. 小区绿化率高,绿树成荫鸟语花香让您随时呼吸到新鲜空气。
-
业主心态问经纪人
业主诚心卖,人也非常和蔼,对市场行情也都比较清楚,没想赚高价,能卖掉就行,价格可以商量,接受面议
-
小区配套问经纪人
丰和园小区是2007年由冠城开发商拿地开发, 小区分为2个院,共计8栋楼纯板楼,B19号院5栋,距离地铁太阳宫站仅200米,周边200米凯德Mall等大型购物商场。
-
服务介绍问经纪人
本人从事这个行业14年,一直在望京,周边的东北三环、亚运村也都比较熟悉,业务上以人为本,诚信做人做事,踏踏实实做好自己,如果您不买房只是需要咨询问题,也可以随时咨询我。
-
税费分析房贷计算
此房满五年,只需要交一个契税;分140平上下浮动,如果是140平米以下的房源,首套和二套都是一个点的契税;140平米以上的是首套1.5的契税2套是2个点契税。
-
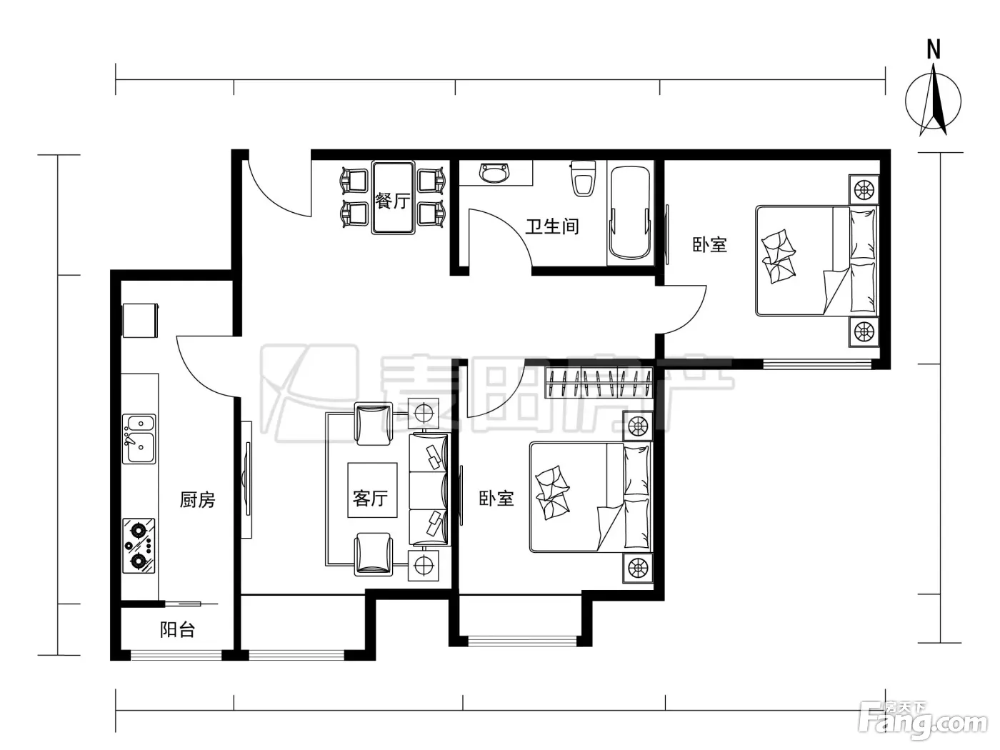
户型解读问经纪人
户型方正,客厅有40平米 两个卫生间都是明的 采光视野好
周边配套
交通综合评分
查看全部超过北京32.3%的小区
-
地铁公交
10.0
-
驾车出行
10.0
本月均价 114542元/m²
环比上月 上涨 0.05%
同比去年 下跌 4.04%
猜你喜欢
同小区其它房源
户型齐全,主打户型方正,明卫,双阳台,主卧朝南三居
太阳星城丰和园户型主要有140平-194平的户型方正,明卫,双阳台,主卧朝南的三居 、93平-160平的客厅朝南,双卧朝南的二居 、76平-94平的户型方正,明厨,客厅朝南,主卧朝南的一居 。
*获取完整户型报告,同时会有免费语音讲解服务
-
96316元/㎡
本月挂牌均价
-
0.46%
环比上月
买房加房产交流群,省钱不踩雷
3000+人正在热聊
- 免费咨询
- 专业服务
- 区域解读
- 户型分析




