桃源里 2室1厅 南 北
-
278万
总价
-
2室1厅
户型
-
76.9㎡
建筑面积
买房加房产交流群,省钱不踩雷
3000+人正在热聊
加入群聊
-
单价
36151元/平米
- 挂牌价格解析
-
楼层
中楼层/6层
- 咨询楼层
-
套内
暂无数据
- 咨询套内使用面积
-
楼型
板楼
-
朝向
南北
-
装修
精装
-
供暖
集中供暖
-
年代
1981
-
发布
2025-09-08
-
地铁
距8号线南段火箭万源站约876米
-
咨询总首付
首付约93.9万
首付税费及佣金情况 -
深度测评
小区桃源里小区(丰台-东高地)
-
更多
楼户比、楼层高度、交易历史、抵押信息
周边配套
地址:东高地德茂桥北
交通综合评分
查看全部6.7
“较好”
超过北京31.4%的小区
-
地铁公交
10.0
-
驾车出行
9.0
本月均价 35111元/m²
环比上月 下跌 0.91%
同比去年 下跌 8.81%
猜你喜欢
同小区其它房源
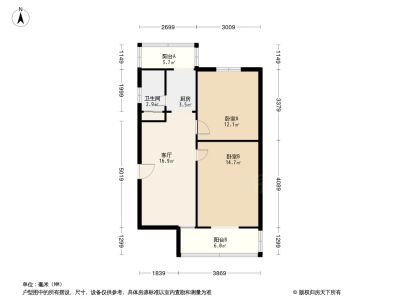
户型齐全,主打户型方正,明厨,客厅朝南,主卧朝南二居
桃源里小区户型主要有61平-83平的户型方正,明厨,客厅朝南,主卧朝南的二居 、43平-76平的户型方正的一居 、76平-96平的户型方正,明卫,双阳台,双卧朝南的三居 。
*获取完整户型报告,同时会有免费语音讲解服务
买房加房产交流群,省钱不踩雷
3000+人正在热聊
加入群聊
免责声明:房源信息由网站用户提供,其真实性、合法性由信息提供者负责,最终以政府部门登记备案为准。本网站不声明或保证内容之正确性和可靠性,购买该房屋时,请谨慎核查。入学情况仅凭历史经验总结,在此不承诺升学事宜。请您在签订合同之前,切勿支付任何形式的费用,以免上当受骗。



