奥林匹克公园 京师园 东南大三居室 高楼层采光视野好 明卫
-
1448万
总价
-
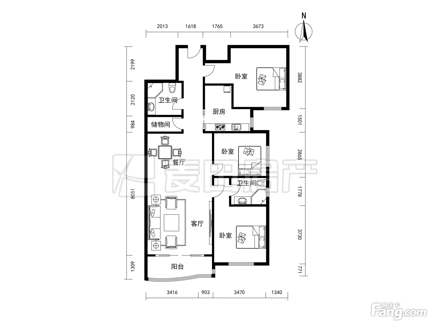
3室1厅2卫
户型
-
146.82㎡
建筑面积
买房加房产交流群,省钱不踩雷
3000+人正在热聊
加入群聊
-
单价
98624元/平米
- 挂牌价格解析
-
楼层
高楼层/21层
- 咨询楼层
-
套内
暂无数据
- 咨询套内使用面积
-
楼型
板塔结合
-
朝向
东南
-
装修
精装
-
供暖
集中供暖
-
年代
2004
-
发布
2023-07-12
-
地铁
距8号线林萃桥站约507米
-
咨询总首付
首付约479.1万
首付税费及佣金情况 -
深度测评
小区京师园(朝阳-奥林匹克公园)
-
更多
楼户比、楼层高度、交易历史、抵押信息
房源描述(1)
周边配套
地址:林萃路9号院
交通综合评分
查看全部7.0
“较好”
超过北京57.8%的小区
-
地铁公交
10.0
-
驾车出行
10.0
本月均价 89438元/m²
环比上月 下跌 0.6%
同比去年 下跌 8.35%
猜你喜欢
同小区其它房源
户型齐全,主打户型方正三居
京师园户型主要有114平-163平的户型方正的三居 、89平-92平的户型方正,双阳台,主卧朝南的二居 、126平-191平的户型方正,主卧朝南的四居 。
*获取完整户型报告,同时会有免费语音讲解服务
-
73641元/㎡
本月挂牌均价
-
1.16%
环比上月
买房加房产交流群,省钱不踩雷
3000+人正在热聊
加入群聊
- 免费咨询
- 专业服务
- 区域解读
- 户型分析
免责声明:房源信息由网站用户提供,其真实性、合法性由信息提供者负责,最终以政府部门登记备案为准。本网站不声明或保证内容之正确性和可靠性,购买该房屋时,请谨慎核查。入学情况仅凭历史经验总结,在此不承诺升学事宜。请您在签订合同之前,切勿支付任何形式的费用,以免上当受骗。


