丽都水岸二期 板楼洋房设计 户型方正 位置安静 看房随时
-
1898万
总价
-
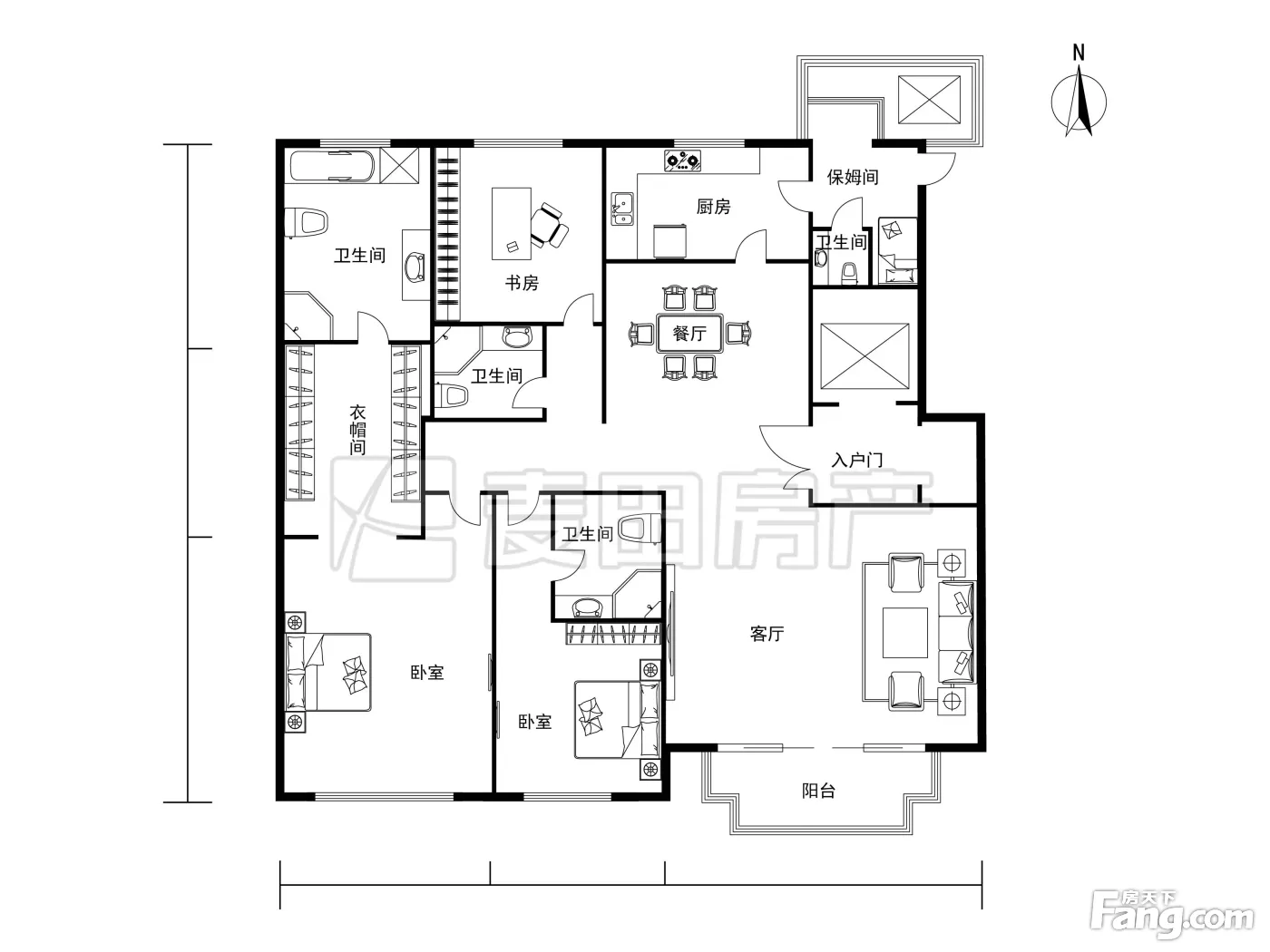
3室2厅3卫
户型
-
218.49㎡
建筑面积
买房加房产交流群,省钱不踩雷
3000+人正在热聊
-
单价
86868元/平米
- 挂牌价格解析
-
楼层
高楼层/9层
- 咨询楼层
-
套内
暂无数据
- 咨询套内使用面积
-
楼型
板楼
-
朝向
南北
-
装修
精装修
-
发布
2024-01-12
-
地铁
距12号线将台西站约571米
-
咨询总首付
首付约644.2万
首付税费及佣金情况 -
深度测评
小区丽都水岸(朝阳-酒仙桥)
-
更多
楼户比、楼层高度、交易历史、抵押信息
房源描述(6)
-
核心卖点问经纪人
1、属于成熟小区,可购房入户。 2、卧室私密性好,非常温馨,客厅宽敞,非常通风,很高。 3、楼层好,视野好,采光好。 4、看房特别方便,房东诚心出售 。 5、周边配套设施完善
-
业主心态问经纪人
房东置换,诚心出售,欢迎看房,随时恭候您的到来!
-
小区配套问经纪人
丽都水岸是中国房地产开发基金在北京开发的个项目,小区共有3期,一期为板楼和塔楼的住房,二期为涉外商务公寓,三期为低密度的townhouse和迭拼公寓。小区一面临河,且南侧有70米宽市政绿化带,外有优美的自然环境,内更建有水景园林,绿树与繁花相间,小桥流水为自然的灵动更增一份闺秀之姿,居于其中,好不悠然自得。
-
服务介绍问经纪人
我从事房产行业多年,积累了大量的专业知识,也得到了业主、客户的信赖和认可,为您买到合适的房子是我的服务宗旨。
-
税费分析房贷计算
产权干净,税费清晰,欢迎来电咨询该房屋详情,静候您的来电!
-
核心卖点问经纪人
相信为您推荐的这套房子您一定会满意,赶快行动吧,先到先得! 房屋年代∶2008,面积∶218.5平方米,朝向∶南北 1. 小区配备高端物业管理,让你享受宾至如归的服务; 2. 小区人文素质高,是您的居家的绝佳选择; 3. 小区居住安静舒适,让您拥有高品质的生活环境; 4. 小区绿化率高,绿树成荫鸟语花香让您随时呼吸到新鲜空气。
-
小区配套问经纪人
丽都水岸是中国房地产开发基金在北京开发的个项目,小区共有3期,一期为板楼和塔楼的住房,二期为涉外商务公寓,三期为低密度的townhouse和迭拼公寓。小区一面临河,且南侧有70米宽市政绿化带,外有优美的自然环境,内更建有水景园林,绿树与繁花相间,小桥流水为自然的灵动更增一份闺秀之姿,居于其中,好不悠然自得。
-
核心卖点问经纪人
丽都水岸B5区三居室 面积:218㎡ 朝向:南北通透 楼层:7/9 客厅和双卧朝南设计,采光好 主卧带独立卫生间和超大步入式衣帽间,尽显奢华 客厅和厨房形成直线对流,两个次卧形成直线对流,主卧和次卧形成直线对流,通风很好 房子带保姆间,保姆间带独立卫生间。
-
业主心态问经纪人
房东置换,诚心出售,欢迎看房,随时恭候您的到来!
-
小区配套问经纪人
丽都水岸是中国房地产开发基金在北京开发的个项目,小区共有3期,一期为板楼和塔楼的住房,二期为涉外商务公寓,三期为低密度的townhouse和迭拼公寓。小区一面临河,且南侧有70米宽市政绿化带,外有优美的自然环境,内更建有水景园林,绿树与繁花相间,小桥流水为自然的灵动更增一份闺秀之姿,居于其中,好不悠然自得。
-
服务介绍问经纪人
我从事房产行业多年,积累了大量的专业知识,也得到了业主、客户的信赖和认可,为您买到合适的房子是我的服务宗旨。
-
税费分析房贷计算
产权干净,税费清晰,欢迎来电咨询该房屋详情,静候您的来电!
-
核心卖点问经纪人
1、房子是丽都水岸二期观景三居,一梯一户,南北通透,客厅主卧朝南,客厅带南向阳台,大概3平多,非常实用,北边两个卧室。 2、社区是封闭式管理,人车分流,绿化环境好,有儿童滑梯,水系喷泉,物业服务好,居住人群素质高。 3、周边生活配套齐全,位于丽都商圈,离颐堤港700米;交通方便,离四环500米,双地铁,地铁12号线芳园里站(300米),地铁14号线将台站(700米)。 相信为您推荐的这套房子您一定会满意,赶快行动吧,先到先得! 房屋年代∶2008,面积∶218.5平方米,朝向∶南北 1. 小区配备高端物业管理,让你享受宾至如归的服务; 2. 小区人文素质高,是您的居家的绝佳选择; 3. 小区居住安静舒适,让您拥有高品质的生活环境; 4. 小区绿化率高,绿树成荫鸟语花香让您随时呼吸到新鲜空气。
-
小区配套问经纪人
丽都水岸是中国房地产开发基金在北京开发的个项目,小区共有3期,一期为板楼和塔楼的住房,二期为涉外商务公寓,三期为低密度的townhouse和迭拼公寓。小区一面临河,且南侧有70米宽市政绿化带,外有优美的自然环境,内更建有水景园林,绿树与繁花相间,小桥流水为自然的灵动更增一份闺秀之姿,居于其中,好不悠然自得。
-
核心卖点问经纪人
1、属于成熟小区,可购房入户。 2、卧室私密性好,非常温馨,客厅宽敞,非常通风,很高。 3、楼层好,视野好,采光好。 4、看房特别方便,房东诚心出售 。 5、周边配套设施完善
-
业主心态问经纪人
房东置换,诚心出售,欢迎看房,随时恭候您的到来!
-
小区配套问经纪人
丽都水岸是中国房地产开发基金在北京开发的个项目,小区共有3期,一期为板楼和塔楼的住房,二期为涉外商务公寓,三期为低密度的townhouse和迭拼公寓。小区一面临河,且南侧有70米宽市政绿化带,外有优美的自然环境,内更建有水景园林,绿树与繁花相间,小桥流水为自然的灵动更增一份闺秀之姿,居于其中,好不悠然自得。
-
服务介绍问经纪人
我从事房产行业多年,积累了大量的专业知识,也得到了业主、客户的信赖和认可,为您买到合适的房子是我的服务宗旨。
-
税费分析房贷计算
产权干净,税费清晰,欢迎来电咨询该房屋详情,静候您的来电!
-
核心卖点问经纪人
相信为您推荐的这套房子您一定会满意,赶快行动吧,先到先得! 房屋年代∶2008,面积∶218.5平方米,朝向∶南北 1. 小区配备高端物业管理,让你享受宾至如归的服务; 2. 小区人文素质高,是您的居家的绝佳选择; 3. 小区居住安静舒适,让您拥有高品质的生活环境; 4. 小区绿化率高,绿树成荫鸟语花香让您随时呼吸到新鲜空气。
-
小区配套问经纪人
丽都水岸是中国房地产开发基金在北京开发的个项目,小区共有3期,一期为板楼和塔楼的住房,二期为涉外商务公寓,三期为低密度的townhouse和迭拼公寓。小区一面临河,且南侧有70米宽市政绿化带,外有优美的自然环境,内更建有水景园林,绿树与繁花相间,小桥流水为自然的灵动更增一份闺秀之姿,居于其中,好不悠然自得。
周边配套
交通综合评分
查看全部超过北京53.1%的小区
-
地铁公交
10.0
-
驾车出行
10.0
本月均价 77421元/m²
环比上月 下跌 0.66%
同比去年 下跌 7.6%
猜你喜欢
同小区其它房源
户型齐全,主打户型方正,明卫,明厨,独立衣帽间,客厅朝南,全明格局,双阳台,主卧朝南三居
丽都水岸户型主要有166平-273平的户型方正,明卫,明厨,独立衣帽间,客厅朝南,全明格局,双阳台,主卧朝南的三居 、120平-123平的双阳台,双卧朝南的二居 、298平-298平的独立衣帽间,双卧朝南,主卧朝南的四居 。
*获取完整户型报告,同时会有免费语音讲解服务
-
59005元/㎡
本月挂牌均价
-
1.05%
环比上月
买房加房产交流群,省钱不踩雷
3000+人正在热聊
- 免费咨询
- 专业服务
- 区域解读
- 户型分析


