奥森公园 观景电梯三居室 15层 精装修 西南北采光 视野好
-
766万
总价
-
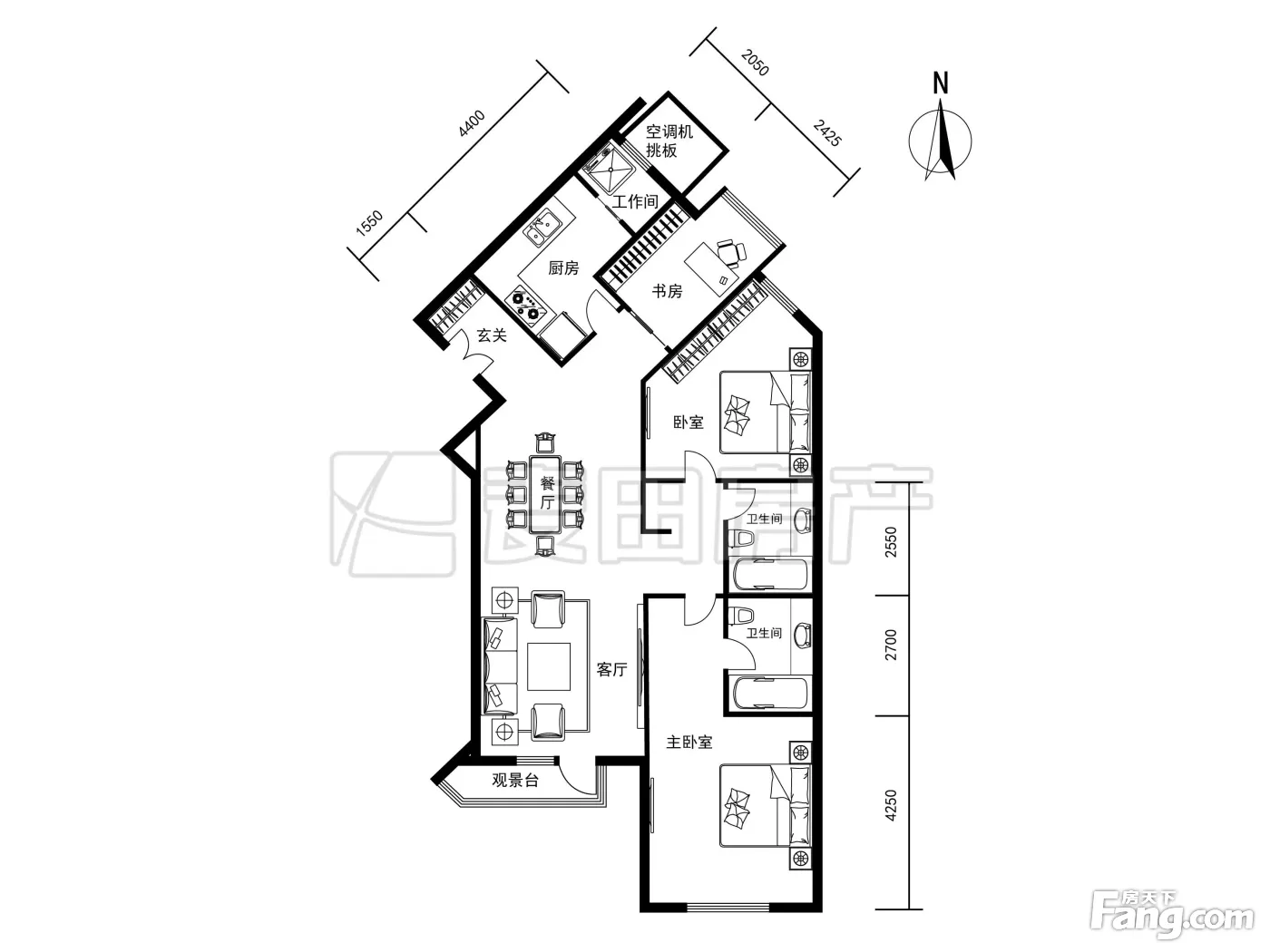
3室2厅2卫
户型
-
137.9㎡
建筑面积
买房加房产交流群,省钱不踩雷
3000+人正在热聊
-
单价
55547元/平米
- 挂牌价格解析
-
楼层
中楼层/35层
- 咨询楼层
-
套内
暂无数据
- 咨询套内使用面积
-
楼型
塔楼
-
朝向
南北
-
装修
精装修
-
发布
2025-07-02
-
地铁
距5号线北苑路北站约828米
-
咨询总首付
首付约457.4万
首付税费及佣金情况 -
深度测评
小区上元君庭(朝阳-北苑)
-
更多
楼户比、楼层高度、交易历史、抵押信息
房源描述(1)
-
核心卖点问经纪人
相信为您推荐的这套房子您一定会满意,赶快行动吧,先到先得! 房屋年代∶2007,面积∶137.9平方米,朝向∶南北 1. 小区配备高端物业管理,让你享受宾至如归的服务; 2. 小区人文素质高,是您的居家的绝佳选择; 3. 小区居住安静舒适,让您拥有高品质的生活环境; 4. 小区绿化率高,绿树成荫鸟语花香让您随时呼吸到新鲜空气。
-
小区配套问经纪人
上元君庭位于北五环国家奥林匹克森林公园东北侧,是一个复合性产品,既有高层也有低密度的多层,该项目占地约为10.52公顷,总建筑面积约为27万平方米。开发商为凯德置地,它是新加坡嘉德置地在华的全资子公司,亚洲的上市房地产公司之一,业务遍布全球20多个国家90多个城市,涉及到的主要国家有美国、澳大利亚、日本、德国等,核心业务包括住宅房产、商业房产、房地产金融、商业综合房产、商业房产等。1994年进入中国,主要在上海、北京、广州等城市进行中高档楼盘的建设。周边配套:中小学:亚奥学校综合商场综合商场:北辰购物中心、阳光
周边配套
交通综合评分
查看全部超过北京38.6%的小区
-
地铁公交
9.0
-
驾车出行
10.0
本月均价 65738元/m²
环比上月 下跌 1.83%
同比去年 下跌 10.05%
猜你喜欢
同小区其它房源
户型齐全,主打户型方正,客厅朝南,主卧朝南二居
上元君庭户型主要有76平-138平的户型方正,客厅朝南,主卧朝南的二居 、49平-78平的户型方正,明厨的一居 、106平-215平的户型方正,双阳台,主卧朝南的三居 。
*获取完整户型报告,同时会有免费语音讲解服务
-
58039元/㎡
本月挂牌均价
-
1.33%
环比上月
买房加房产交流群,省钱不踩雷
3000+人正在热聊
- 免费咨询
- 专业服务
- 区域解读
- 户型分析


