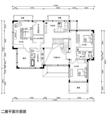
红螺湖 4室1厅 南 北
-
900万
总价
-
4室1厅
户型
-
425.23㎡
建筑面积
买房加房产交流群,省钱不踩雷
3000+人正在热聊
加入群聊
-
单价
21166元/平米
- 挂牌价格解析
-
楼层
底层/2层
- 咨询楼层
-
套内
425.23㎡
- 咨询套内使用面积
-
楼型
板楼
-
朝向
南北
-
装修
其他
-
供暖
暂无数据
-
年代
2004
-
发布
2024-12-28
-
地铁
暂无数据
-
咨询总首付
首付约297.9万
首付税费及佣金情况 -
深度测评
小区红螺湖别墅(怀柔-怀柔)
-
更多
楼户比、楼层高度、交易历史、抵押信息
周边配套
地址:红螺湖东南岸红螺湖路8号
交通综合评分
查看全部2.0
“一般”
超过北京69.3%的小区
-
地铁公交
5.0
本月均价 27883元/m²
环比上月 下跌 0.05%
同比去年 下跌 0.81%
猜你喜欢
同小区其它房源
买房加房产交流群,省钱不踩雷
3000+人正在热聊
加入群聊
免责声明:房源信息由网站用户提供,其真实性、合法性由信息提供者负责,最终以政府部门登记备案为准。本网站不声明或保证内容之正确性和可靠性,购买该房屋时,请谨慎核查。入学情况仅凭历史经验总结,在此不承诺升学事宜。请您在签订合同之前,切勿支付任何形式的费用,以免上当受骗。



