远洋山水南区 · 1室 · 1厅1卫,,满五唯一
-
298万
总价
-
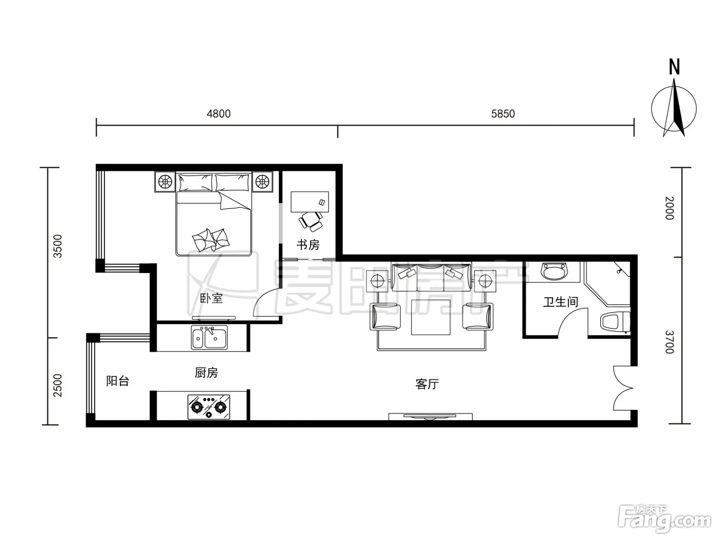
1室1厅1卫
户型
-
64.15㎡
建筑面积
买房加房产交流群,省钱不踩雷
3000+人正在热聊
-
单价
46454元/平米
- 挂牌价格解析
-
楼层
高楼层/27层
- 咨询楼层
-
套内
暂无数据
- 咨询套内使用面积
-
楼型
塔楼
-
朝向
西
-
装修
精装
-
供暖
集中供暖
-
年代
2008
-
发布
2025-09-09
-
地铁
距1号线(八通线)八宝山站约858米
-
咨询总首付
首付约85.5万
首付税费及佣金情况 -
深度测评
小区远洋山水(石景山-鲁谷)
-
更多
楼户比、楼层高度、交易历史、抵押信息
房源描述(2)
-
核心卖点问经纪人
相信为您推荐的这套房子您一定会满意,赶快行动吧,先到先得! 房屋年代∶2007,面积∶64.15平方米,朝向∶西 1. 小区配备高端物业管理,让你享受宾至如归的服务; 2. 小区人文素质高,是您的居家的绝佳选择; 3. 小区居住安静舒适,让您拥有高品质的生活环境; 4. 小区绿化率高,绿树成荫鸟语花香让您随时呼吸到新鲜空气。
-
小区配套问经纪人
远洋山水地处西四环与西五环之间,距1号线(五棵松地铁站)1.8公里,距西三环4.8公里,周边路网发达、交通便利。北侧是长安街西延长线,为城市主干道,1号线地铁贯穿东西长安街。 小区座落在北京市环城绿化带上,总占地面积204公顷,其中开发建设用地45.84公顷,大型绿化用地114公顷,分布在石景山路南北两侧。总建筑面积150万平方米以上、配套完善、环境优美、适宜居住。 小区配套有景山学校远洋分校,为石景山的学校,北临台湾街,雕塑公园,西邻万达广场(1公里)。小区四周有工商银行,北京银行,中国银行,建行农行,光大银
-
核心卖点问经纪人
相信为您推荐的这套房子您一定会满意,赶快行动吧,先到先得! 房屋年代∶2007,面积∶64.15平方米,朝向∶西 1. 小区配备高端物业管理,让你享受宾至如归的服务; 2. 小区人文素质高,是您的居家的绝佳选择; 3. 小区居住安静舒适,让您拥有高品质的生活环境; 4. 小区绿化率高,绿树成荫鸟语花香让您随时呼吸到新鲜空气。
-
小区配套问经纪人
远洋山水地处西四环与西五环之间,距1号线(五棵松地铁站)1.8公里,距西三环4.8公里,周边路网发达、交通便利。北侧是长安街西延长线,为城市主干道,1号线地铁贯穿东西长安街。 小区座落在北京市环城绿化带上,总占地面积204公顷,其中开发建设用地45.84公顷,大型绿化用地114公顷,分布在石景山路南北两侧。总建筑面积150万平方米以上、配套完善、环境优美、适宜居住。 小区配套有景山学校远洋分校,为石景山的学校,北临台湾街,雕塑公园,西邻万达广场(1公里)。小区四周有工商银行,北京银行,中国银行,建行农行,光大银
周边配套
交通综合评分
查看全部超过北京9.2%的小区
-
地铁公交
9.0
-
驾车出行
10.0
-
城际交通
4.0
本月均价 58331元/m²
环比上月 下跌 1.65%
同比去年 下跌 9.81%
猜你喜欢
同小区其它房源
户型齐全,主打客厅朝南,明厨二居
远洋山水户型主要有56平-135平的客厅朝南,明厨的二居 、56平-163平的户型方正,明卫,客厅朝南,双阳台的三居 、47平-77平的户型方正,明厨的一居 。
*获取完整户型报告,同时会有免费语音讲解服务
-
47402元/㎡
本月挂牌均价
-
0.53%
环比上月
买房加房产交流群,省钱不踩雷
3000+人正在热聊
- 免费咨询
- 专业服务
- 区域解读
- 户型分析



