澳林春天四期 双卧南向3居 高得房率 奥森公园一路之隔
-
1399万
总价
-
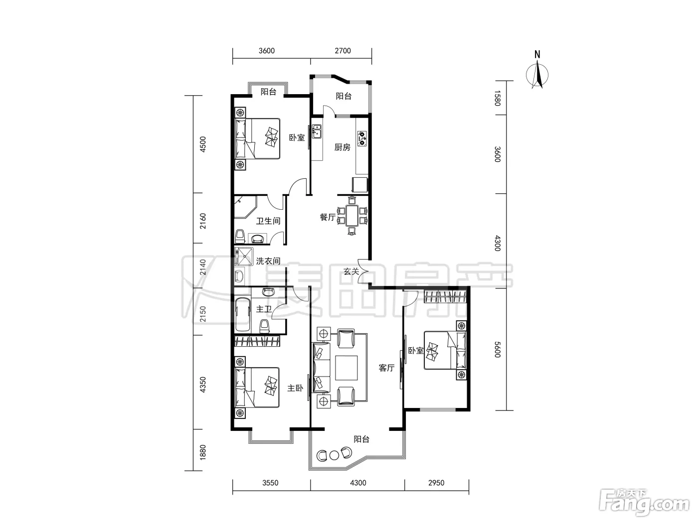
3室2厅2卫
户型
-
150.65㎡
建筑面积
买房加房产交流群,省钱不踩雷
3000+人正在热聊
-
单价
92864元/平米
- 挂牌价格解析
-
楼层
低楼层/12层
- 咨询楼层
-
套内
暂无数据
- 咨询套内使用面积
-
楼型
板楼
-
朝向
南北
-
装修
精装修
-
发布
2025-02-25
-
地铁
距8号线林萃桥站约1077米
-
咨询总首付
首付约463.5万
首付税费及佣金情况 -
深度测评
小区澳林春天四期(朝阳-奥林匹克公园)
-
更多
楼户比、楼层高度、交易历史、抵押信息
房源描述(3)
-
核心卖点问经纪人
小区马路对面就是奥森公园,社区环境优美,每两栋楼之间都有一个上浮平台,不走车,适合休闲散步。 房子是南北通透3居2卫,双卧夹客厅朝南向,次卧厨房朝北,餐客厅分离,厨房方正有独立阳台。 业主诚意出售,看房提前约,小区还有其他楼层。
-
小区配套问经纪人
澳林春天四期(澳林春天)小区傲立亚奥商圈的核心位置,由四栋9-12层板楼组成,1梯2户。位于位于林萃路西侧。与国家森林公园仅一路之隔,小区门口即公交车站,距离地铁8号线林萃桥站直线距离900米。
-
服务介绍问经纪人
我是专业顾问张莉蓉,全心全意为您服务,团队有17年的从业经验,主做奥森板块二手房;全北京新房业务,专车免费接,希望帮您早日找到满意的房子,欢迎您来电咨询!全程、全诚、全城为您服务!!!
-
核心卖点问经纪人
1、户型:澳林春天四期31号楼2层不临主路位置南北通透双卫大三居室,眼镜户型,带储物间,双卧客厅南向,客厅全落地阳台,主卧室独立卫生间,餐客厅分离,互不影响。厨房北向带阳台,方便储物,格局合理,户型方正,楼间距大,采光通风良好。 2、装修:装修保持的特别好,中式古典装修,干净整洁。 3、环境:半人车分流,完全封闭管理,环境很好,人文素质高,隔着马路就是奥林匹克森林公园西门。 4、位置:位于奥林匹克森林公园西门,8号线林萃桥和15号线奥林匹克公园站,环境好。生活配套成熟,衣食出行便利齐全,华创生活卖场,各种小型日用品店,多线路穿行。 5、与周边小区对比:奥森西门的一处洋房,具备稀/缺性。小区30%的绿化,物业费2.48。
-
业主心态问经纪人
我和此房业主陈先生面谈过,了解其售房动向,能够及时为您提供房源变化,诚意出售,业主已经看满意要买的房子,诚意出售,业主也了解小区成交走势,价格能谈,期待有缘人的光临。看房提前和我打电话即可。
-
小区配套问经纪人
澳林春天四期(澳林春天)小区傲立亚奥商圈的核心位置,由四栋9-12层板楼组成,1梯2户。位于位于林萃路西侧。与国家森林公园仅一路之隔,小区门口即公交车站,距离地铁8号线林萃桥站直线距离900米。
-
服务介绍问经纪人
【个人简介】我服务奥林匹克森林公园周边业主9年,熟悉周边产品,秉承公司利他文化,以诚待人,保证服务交易安全,高效,透明。赢得客户信任是我持续追求的方向。全北京新房都有合作,享受团购优惠价。
-
税费分析房贷计算
我看过房本原件,产权清晰,满五年高原值,只有契税,详情请咨询我
-
户型解读问经纪人
澳林春天四期31号楼2层不临主路位置南北通透双卫大三居室,眼镜户型,带储物间,双卧客厅南向,客厅全落地阳台,主卧室独立卫生间,餐客厅分离,互不影响。厨房北向带阳台,方便储物,格局合理,户型方正,楼间距大,采光通风良好。
周边配套
交通综合评分
查看全部超过北京97.3%的小区
-
地铁公交
10.0
-
驾车出行
10.0
本月均价 100273元/m²
环比上月 上涨 0.28%
同比去年 下跌 3.66%
猜你喜欢
同小区其它房源
户型齐全,主打户型方正,双阳台,主卧朝南二居
澳林春天四期户型主要有80平-143平的户型方正,双阳台,主卧朝南的二居 、110平-231平的户型方正,独立衣帽间,双阳台,主卧朝南的三居 、155平-279平的户型方正,双阳台,主卧朝南,明卫的四居 。
*获取完整户型报告,同时会有免费语音讲解服务
-
73534元/㎡
本月挂牌均价
-
0.76%
环比上月
买房加房产交流群,省钱不踩雷
3000+人正在热聊
- 免费咨询
- 专业服务
- 区域解读
- 户型分析



