九章别墅 现房独栋!使用1000平,新房走一手手续,现房
-
5800万
总价
-
8室5厅6卫
户型
-
913㎡
建筑面积
买房加房产交流群,省钱不踩雷
3000+人正在热聊
加入群聊
-
单价
63527元/平米
- 挂牌价格解析
-
楼层
3层
- 咨询楼层
-
套内
912㎡
- 咨询套内使用面积
-
楼型
独栋
-
朝向
南
-
装修
简装修
-
年代
2013
-
发布
2026-03-28
-
咨询总首付
首付约1918.7万
首付税费及佣金情况 -
深度测评
小区九章别墅(朝阳-中央别墅区)
-
更多
楼户比、楼层高度、交易历史、抵押信息
房源描述(1)
-
核心卖点问经纪人
朝阳区低密现房 别墅直 一半之前1.2个亿,现在58,000,000出售业主出国随时下房本 清晰
-
业主心态问经纪人
《业主心态》房主因移民计划,诚意出售此房产,手续完备,随时可看房。我作为房主的亲密合作伙伴,能确保买卖双方的友好沟通,房主对我充满信任,急售心态明确,期待与您快交!
-
小区配套问经纪人
小区地理位置佳,绿化环境优越整洁,居民素质高,物业管理完善,适宜居住
-
服务介绍问经纪人
作为拥有多年经验的房产,我精通各类购房 及房屋买卖流程,能提供专业且高效的交易服务。我的附加服务包括协助办理手续、装修咨询以及提供买卖建议,确保您的购房之路顺畅无忧。
-
税费分析房贷计算
关于本房的税费信息情况,请电话联系我,我将详细的为您讲解!
-
户型解读问经纪人
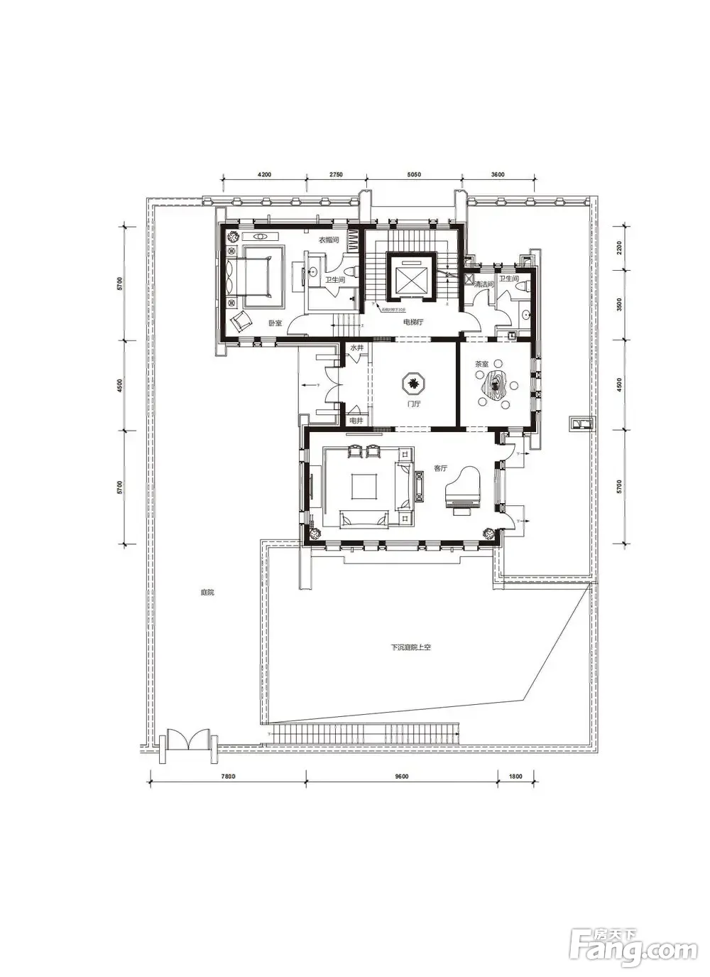
房屋拥有相对宽松的尺寸,布局通透,动静分离,设计豪华
周边配套
地址:东苇路3号,首都机场高速南侧
交通综合评分
查看全部5.0
“一般”
超过北京56.7%的小区
-
地铁公交
5.0
-
驾车出行
10.0
猜你喜欢
同小区其它房源
买房加房产交流群,省钱不踩雷
3000+人正在热聊
加入群聊
- 免费咨询
- 专业服务
- 区域解读
- 户型分析
免责声明:房源信息由网站用户提供,其真实性、合法性由信息提供者负责,最终以政府部门登记备案为准。本网站不声明或保证内容之正确性和可靠性,购买该房屋时,请谨慎核查。入学情况仅凭历史经验总结,在此不承诺升学事宜。请您在签订合同之前,切勿支付任何形式的费用,以免上当受骗。


