南北通透公园大道3室2厅精装修
-
1900万
总价
-
3室2厅2卫
户型
-
196.3㎡
建筑面积
买房加房产交流群,省钱不踩雷
3000+人正在热聊
-
单价
96791元/平米
- 挂牌价格解析
-
楼层
低层/35层
- 咨询楼层
-
套内
暂无数据
- 咨询套内使用面积
-
楼型
塔板结合
-
朝向
南北
-
装修
精装修
-
年代
2004
-
发布
2026-01-04
-
地铁
距14号线朝阳公园站约865米
-
咨询总首付
首付约645.3万
首付税费及佣金情况 -
深度测评
小区公园大道(朝阳-朝阳公园)
-
更多
楼户比、楼层高度、交易历史、抵押信息
房源描述(1)
-
核心卖点问经纪人
相信为您推荐的这套房子您一定会满意,赶快行动吧,先到先得! 房屋年代∶2004,面积∶196.3平方米,朝向∶南北 1. 小区配备高端物业管理,让你享受宾至如归的服务; 2. 小区人文素质高,是您的居家的绝佳选择; 3. 小区居住安静舒适,让您拥有高品质的生活环境; 4. 小区绿化率高,绿树成荫鸟语花香让您随时呼吸到新鲜空气。
-
小区配套问经纪人
公园大道,位于朝阳公园及红领巾公园之间, CBD、燕莎商圈、盈科商圈。北京5A级住宅,美国汉斯国际知名开发商开发。 3.15米净层高、智能安保系统、独立新风、强电、低压、水系统三重过滤五大系统彻底颠覆传统住宅理念,多样的户型设计、200多个国家国际友人的居住让该社区充满了浓厚的家庭生活氛围、小区业主百口称赞,小区入住率高达98%。 小区地形呈阶梯形状,为了充分合理利用土地,同时可以创造面积绿地,?在小区北面安排了3栋31层的高层板塔结合住宅,南面安排了2栋17——13层、14——10层的小高层板式住宅,沿东西向交错
周边配套
交通综合评分
查看全部超过北京76.0%的小区
-
地铁公交
10.0
-
驾车出行
10.0
-
城际交通
4.0
本月均价 92000元/m²
环比上月 下跌 0.42%
同比去年 下跌 5.18%
猜你喜欢
同小区其它房源
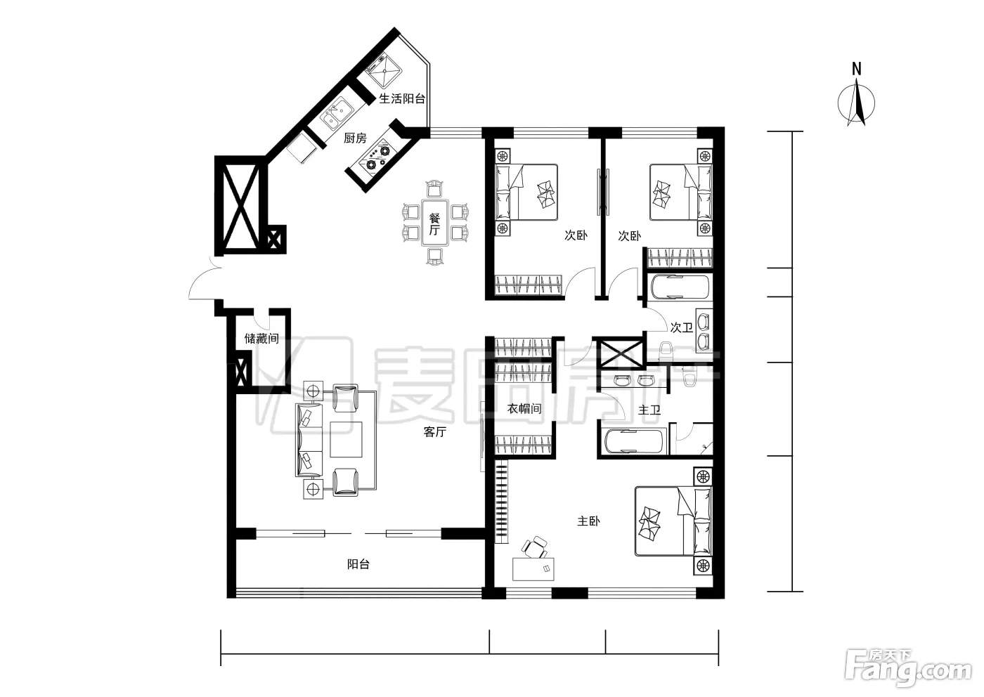
户型齐全,主打户型方正,明卫,独立衣帽间三居
公园大道户型主要有163平-337平的户型方正,明卫,独立衣帽间的三居 、130平-174平的独立衣帽间,客厅朝南,双阳台,双卧朝南,主卧朝南的二居 、211平-429平的户型方正,独立衣帽间,客厅朝南,双阳台,双卧朝南的四居 。
*获取完整户型报告,同时会有免费语音讲解服务
-
78695元/㎡
本月挂牌均价
-
1.43%
环比上月
买房加房产交流群,省钱不踩雷
3000+人正在热聊
- 免费咨询
- 专业服务
- 区域解读
- 户型分析


