亦庄,别墅边户 现房,独门独院,,,私家车库,特价
-
740万
总价
-
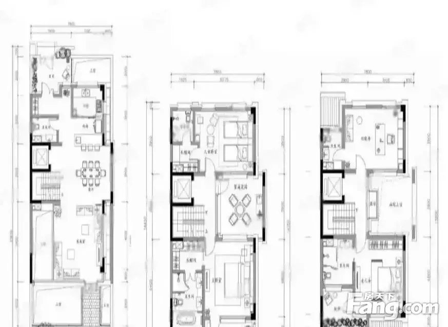
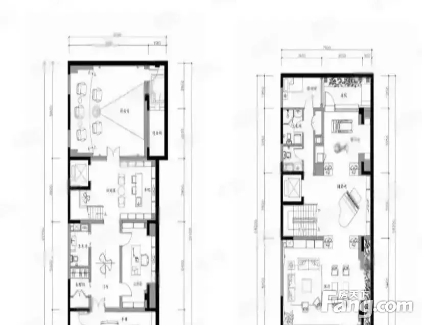
5室3厅6卫
户型
-
350㎡
建筑面积
买房加房产交流群,省钱不踩雷
3000+人正在热聊
-
单价
21143元/平米
- 挂牌价格解析
-
楼层
4层
- 咨询楼层
-
套内
349㎡
- 咨询套内使用面积
-
楼型
独栋
-
朝向
南
-
装修
毛坯
-
年代
2025
-
发布
2026-01-02
-
地铁
暂无数据
-
咨询总首付
首付约251.7万
首付税费及佣金情况 -
深度测评
小区兴创荣墅(大兴-采育)
-
更多
楼户比、楼层高度、交易历史、抵押信息
房源描述(1)
-
核心卖点问经纪人
重要提示,(您浏览的网页版微聊正在升级,无法及时收到消息,请直接拨打电话咨询,24在线接听。 您的信任是我努力工作的动力,为您购房置业提供专业并且具有效率的服务。全北京楼盘代理,并且提供专车接服务。 从事房地产工作10年+,多年经验性格踏实,给您真实,客观的建议。随时联系杨
-
业主心态问经纪人
1:所出售的房源均为新房,价格透明无差价 2:购房成本仅需缴纳契税、公共维修基金,无 3:新房的设计理念更加先进,居住舒适度更高 4:无论是别墅还是第四代住宅,都能让您的购房体验更有意义,刚需改善都应该考虑新房
-
小区配套问经纪人
小区地理位置佳,绿化环境优越整洁,居民素质高,物业管理完善,适宜居住
-
服务介绍问经纪人
本人做房产多年,一直本着专业的房产知识,为您服务,我会在短的时间内帮您买好满意的房子,不让您错失任何好房子,更不让您每天为买房的事烦心,欢迎随时拨打我电话。
-
税费分析房贷计算
关于本房的税费信息情况,请电话联系我,我将详细的为您讲解!
-
户型解读问经纪人
房屋拥有相对宽松的尺寸,布局通透,动静分离,设计豪华
周边配套
猜你喜欢
同小区其它房源
户型齐全,主打户型方正,观景飘窗三居
兴创荣墅户型主要有188平-305平的户型方正,观景飘窗的三居 、350平-540平的南北通透,户型方正,高附赠空间,采光充足,卧室朝南,挑高客厅,带衣帽间,独立庭院的五居 、573平-575平的南北通透,户型方正,动静分离,高附赠空间,客厅朝南,餐客分离,带露台的四居 。
*获取完整户型报告,同时会有免费语音讲解服务
-
19659元/㎡
本月挂牌均价
-
1.38%
环比上月
买房加房产交流群,省钱不踩雷
3000+人正在热聊
- 免费咨询
- 专业服务
- 区域解读
- 户型分析


