西城银锭桥 后海南沿小独院 出门见海 两证齐全 诚心出售
-
1350万
总价
-
3室1厅1卫
户型
-
80㎡
建筑面积
买房加房产交流群,省钱不踩雷
3000+人正在热聊
-
单价
168750元/平米
- 挂牌价格解析
-
楼层
底层/1层
- 咨询楼层
-
套内
暂无数据
- 咨询套内使用面积
-
楼型
板楼
-
朝向
南北
-
装修
精装修
-
年代
2019
-
发布
2025-12-10
-
地铁
距8号线什刹海站约758米
-
咨询总首付
首付约957.7万
首付税费及佣金情况 -
深度测评
小区后海南沿胡同(西城-地安门)
-
更多
楼户比、楼层高度、交易历史、抵押信息
房源描述(1)
-
核心卖点问经纪人
关于平房、四合院的所有问题,欢迎您随时来电咨询详情; (1)西城区后海边,出门见海,小独院,根据自己喜好改造空间大,周边无高层,整洁管理好,位置胡同进出车方便。 (2)是私产四合院,大红本,两证齐,过户周期快。 (3)现在是空置中,业主诚意出售把房屋的手续都已放在公司。 主做东西城二环内的平房、四合院,服务项目(平房四合院的买卖、网签,缴税,平房测量,测绘,继承、翻建、报批、规划、审批、免费代办土地证、权属审查等)。
-
业主心态问经纪人
业主诚意出售,手续齐全,价格公道,看房方便,节省您的时间和精力、交易每一套平房、时间周期大约需要1-3个月、每一位业主出售房源的原因都不一样,业主心态总结如下: 1、业主遇到棘手的事情需要用钱; 2、改善居住环境; 3、上一辈留下的遗产、下一辈进行分享; 4、出国深造,居住用不到此房源等;
-
小区配套问经纪人
地理位置佳,绿化环境优越整洁,居民素质高,物业管理完善,适宜居住
-
服务介绍问经纪人
本公司主营二环里的平房四合院买卖,办理土地证等业务。解决各种房屋疑难房产。 本人希望通过自己的专业知识和行业经验,为您解答平房相关事宜。尊重客户,理解客户,用“心”去服务每一位客户。
-
税费分析房贷计算
关于本房的税费信息情况,请电话联系我,我将详细的为您讲解!
-
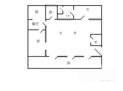
户型解读问经纪人
房屋拥有相对宽松的尺寸,布局通透,动静分离,设计合理
周边配套
交通综合评分
查看全部超过北京68.4%的小区
-
地铁公交
10.0
-
驾车出行
10.0
-
城际交通
4.0
本月均价 101707元/m²
环比上月 下跌 3.47%
同比去年 下跌 32.03%
-
136873元/㎡
本月挂牌均价
-
0.47%
环比上月
买房加房产交流群,省钱不踩雷
3000+人正在热聊
- 免费咨询
- 专业服务
- 区域解读
- 户型分析


