急售 可议价 独墅逸致229.87平米独栋 地下 带大院
-
750万
总价
-
4室2厅1卫
户型
-
229.87㎡
建筑面积
买房加房产交流群,省钱不踩雷
3000+人正在热聊
加入群聊
-
单价
32627元/平米
- 挂牌价格解析
-
楼层
2层
- 咨询楼层
-
套内
228.87㎡
- 咨询套内使用面积
-
楼型
独栋
-
朝向
南
-
装修
简装修
-
年代
2008
-
发布
2026-01-12
-
咨询总首付
首付约248.9万
首付税费及佣金情况 -
深度测评
小区独墅逸致(大兴-庞各庄)
-
更多
楼户比、楼层高度、交易历史、抵押信息
房源描述(1)
-
核心卖点问经纪人
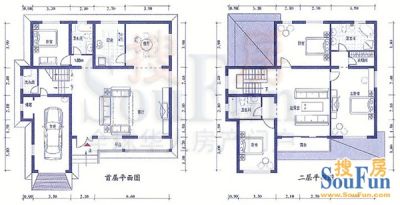
——感谢您的关注和支持 祝您生活愉快事事顺心—— 【一】独墅逸致 独栋别墅,带车库 有400多平米的大院 【二】229.87㎡独栋 空间敞亮 使用率高 地下一层 【三】正南正北 客厅挑高 格局方正 【四】目前报价750万价格可谈,看房方便 【五】社区清净优美,24时安保,封闭式社区,安全性高 【六】配套商业街、游泳健身会所、物美华联早市、龙熙温泉水世界、高尔夫球场… 【七】就读庞幼、庞小、翠微大兴分斅、庞中(北师大附*分斅)、第二外国语大兴分斅。
-
业主心态问经纪人
房东置换,诚心出售,可以再谈,欢迎看房,随时恭候。
-
小区配套问经纪人
小区地理位置佳,绿化环境优越整洁,居民素质高,物业管理完善,适宜居住
-
服务介绍问经纪人
跟单经纪人:张国良来自牡丹之乡伯乐故里山东成武 从业多年为人踏实诚恳,具备房地产从业证书,感谢您的关注和支持!祝您生活愉快,事事顺心!
-
税费分析房贷计算
关于本房的税费信息情况,请电话联系我,我将详细的为您讲解!
-
户型解读问经纪人
房屋拥有相对宽松的尺寸,布局通透,动静分离,设计豪华
周边配套
地址:大兴区京开高速庞各庄出口薛营桥
交通综合评分
查看全部5.0
“一般”
超过北京81.0%的小区
-
地铁公交
5.0
-
驾车出行
10.0
猜你喜欢
同小区其它房源
-
23766元/㎡
本月挂牌均价
-
1%
环比上月
买房加房产交流群,省钱不踩雷
3000+人正在热聊
加入群聊
- 免费咨询
- 专业服务
- 区域解读
- 户型分析
免责声明:房源信息由网站用户提供,其真实性、合法性由信息提供者负责,最终以政府部门登记备案为准。本网站不声明或保证内容之正确性和可靠性,购买该房屋时,请谨慎核查。入学情况仅凭历史经验总结,在此不承诺升学事宜。请您在签订合同之前,切勿支付任何形式的费用,以免上当受骗。


