云筑2期145平四居 850W 预购从速
-
850万
总价
-
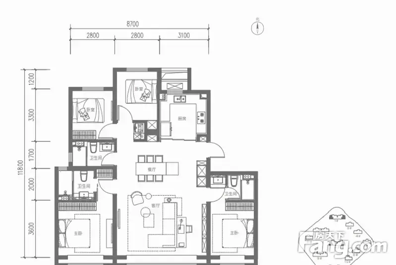
4室2厅3卫
户型
-
145㎡
建筑面积
买房加房产交流群,省钱不踩雷
3000+人正在热聊
-
单价
58621元/平米
- 挂牌价格解析
-
楼层
底层/6层
- 咨询楼层
-
套内
144㎡
- 咨询套内使用面积
-
楼型
板楼
-
朝向
南北
-
装修
简装修
-
年代
2024
-
发布
2025-12-07
-
地铁
距17号线十八里店约505米
-
咨询总首付
首付约288.5万
首付税费及佣金情况 -
深度测评
小区金隅昆泰云筑(朝阳-十八里店)
-
更多
楼户比、楼层高度、交易历史、抵押信息
房源描述(1)
-
核心卖点问经纪人
开发商:北京隅泰房地产开发有 公司 物业公司:北京金隅物业 物业费:6.98元/㎡·月 占地面积约:27366㎡ 总建筑面积约:102968㎡ 容积率:2.5 绿地率:30% 产 权:70年 住宅户数:536户 设计楼栋:11栋 设计楼高:13-17层 单价:75000元/㎡ 预计总价:约800-1200万/套 面积区间:建面约114-152㎡ 交付标准:精装 供暖方式:集中供暖,地暖 区域交通:距地铁17号线十八里店站约300米,东四环主路、京沪高速、大羊坊路,涵盖400路内环、440路、602路等公交线
-
业主心态问经纪人
案场销售主管:孙燕令 所有服务,没有任何费用,无偿提供咨 询,陪同看房。 您的满意就是我的动力,公司有大量新房楼盘,为您而选,为您安家。 我会让您短时间内选到您满意的房源,欢迎您随时拨打电话咨询。
-
小区配套问经纪人
小区地理位置佳,绿化环境优越整洁,居民素质高,物业管理完善,适宜居住
-
服务介绍问经纪人
本人做房产多年,一直本着专业的房产知识,为您服务,我会在短的时间内帮您买好满意的房子,不让您错失任何好房子,更不让您每天为买房的事烦心,欢迎随时拨打我电话。
-
税费分析房贷计算
关于本房的税费信息情况,请电话联系我,我将详细的为您讲解!
-
户型解读问经纪人
房屋拥有相对宽松的尺寸,布局通透,动静分离,设计豪华
周边配套
交通综合评分
查看全部超过北京0.0%的小区
-
地铁公交
8.0
-
驾车出行
10.0
本月均价 75987元/m²
环比上月 下跌 0.91%
同比去年 上涨 4.96%
猜你喜欢
同小区其它房源
户型齐全,主打南北通透,客厅朝南三居
金隅昆泰云筑户型主要有114平-124平的南北通透,客厅朝南的三居 、123平-123平的南北通透,客厅朝南的二居 、152平-152平的南北通透,客厅朝南的四居 。
*获取完整户型报告,同时会有免费语音讲解服务
-
48761元/㎡
本月挂牌均价
-
1.33%
环比上月
买房加房产交流群,省钱不踩雷
3000+人正在热聊
- 免费咨询
- 专业服务
- 区域解读
- 户型分析


