远洋万和公馆 南北通透两居室 卧室大 客厅大 平视花园
-
1470万
总价
-
2室2厅2卫
户型
-
172.67㎡
建筑面积
买房加房产交流群,省钱不踩雷
3000+人正在热聊
-
单价
85133元/平米
- 挂牌价格解析
-
楼层
低层/28层
- 咨询楼层
-
套内
暂无数据
- 咨询套内使用面积
-
楼型
板楼
-
朝向
南北
-
装修
精装修
-
年代
2015
-
发布
2025-12-06
-
地铁
距15号线望京东站约732米
-
咨询总首付
首付约486.2万
首付税费及佣金情况 -
深度测评
小区远洋万和公馆(朝阳-望京)
-
更多
楼户比、楼层高度、交易历史、抵押信息
房源描述(1)
-
核心卖点问经纪人
相信为您推荐的这套房子您一定会满意,赶快行动吧,先到先得! 房屋年代∶2015,面积∶172.67平方米,朝向∶南北 1. 小区配备高端物业管理,让你享受宾至如归的服务; 2. 小区人文素质高,是您的居家的绝佳选择; 3. 小区居住安静舒适,让您拥有高品质的生活环境; 4. 小区绿化率高,绿树成荫鸟语花香让您随时呼吸到新鲜空气。
-
业主心态问经纪人
业主诚心卖,人也非常和蔼,对市场行情也都比较清楚,没想赚高价,能卖掉就行,价格可以商量,接受面议
-
小区配套问经纪人
由远洋地产开发建设,凝聚丰富开发经验,多年潜心精研,缔造万和品牌升级之作——远洋万和公馆,以全球都会核心的优越生活方式,为世界华人领袖奉献梦幻家园。项目踞34万平米浩瀚大望京公园而建,立基国家商务区核心,于国门咽喉之地,西接京承高速,瞬间直抵首都国际机场,背倚北小河百米原生河岸,南临40米宽城市绿化带,三面环景,籍以自然屏障,
-
服务介绍问经纪人
本人从事这个行业14年,一直在望京,周边的东北三环、亚运村也都比较熟悉,业务上以人为本,诚信做人做事,踏踏实实做好自己,如果您不买房只是需要咨询问题,也可以随时咨询我。
-
税费分析房贷计算
此房满五年,只需要交一个契税;分140平上下浮动,如果是140平米以下的房源,首套和二套都是一个点的契税;140平米以上的是首套1.5的契税2套是2个点契税。
-
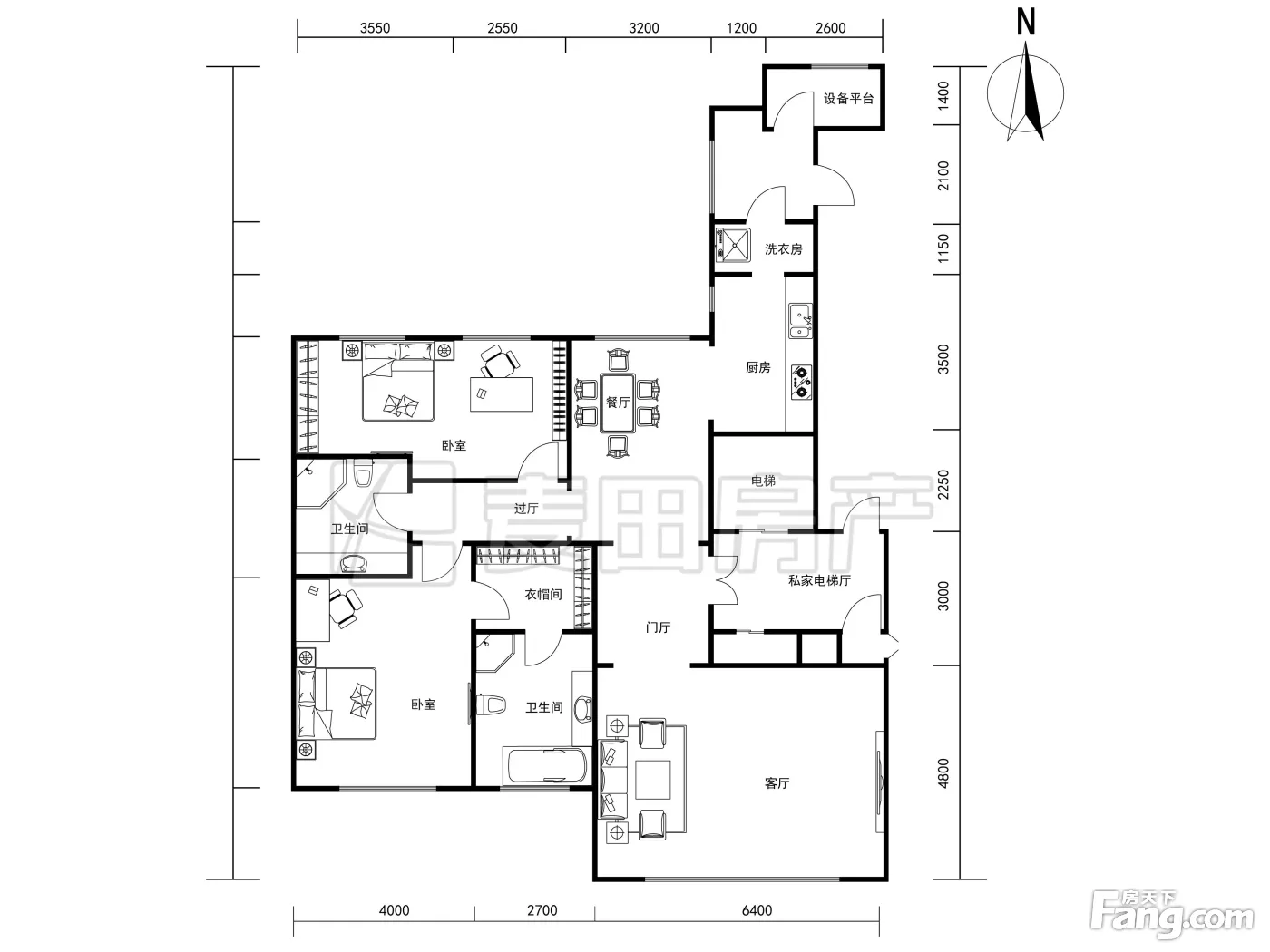
户型解读问经纪人
户型方正,客厅有40平米 两个卫生间都是明的 采光视野好
周边配套
交通综合评分
查看全部超过北京9.1%的小区
-
地铁公交
10.0
-
驾车出行
10.0
本月均价 93330元/m²
环比上月 下跌 3.87%
同比去年 下跌 21.84%
猜你喜欢
同小区其它房源
户型齐全,主打户型方正,明厨,明卫,独立衣帽间,客厅朝南,全明格局,双卧朝南三居
远洋万和公馆户型主要有207平-256平的户型方正,明厨,明卫,独立衣帽间,客厅朝南,全明格局,双卧朝南的三居 、350平-840平的独立车库,入户花园,独立电梯的五居 、280平-291平的户型方正,明卫,明厨,独立衣帽间,客厅朝南,全明格局,双卧朝南,主卧朝南的四居 。
*获取完整户型报告,同时会有免费语音讲解服务
-
61308元/㎡
本月挂牌均价
-
1.97%
环比上月
买房加房产交流群,省钱不踩雷
3000+人正在热聊
- 免费咨询
- 专业服务
- 区域解读
- 户型分析


