天地神通融城南区 次顶层南北通透3居室看房有钥匙,诚售
-
125万
总价
-
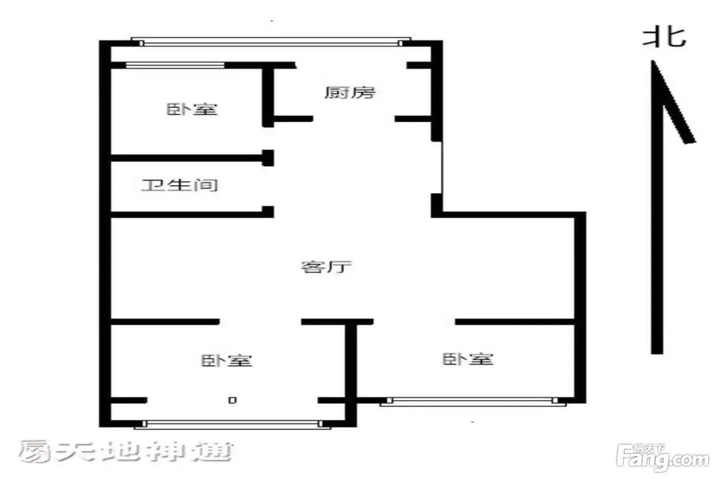
3室1厅1卫
户型
-
80.65㎡
建筑面积
买房加房产交流群,省钱不踩雷
3000+人正在热聊
-
单价
15499元/平米
- 挂牌价格解析
-
楼层
高层/6层
- 咨询楼层
-
套内
暂无数据
- 咨询套内使用面积
-
楼型
板楼
-
朝向
南北
-
装修
简装修
-
年代
1995
-
发布
2025-12-05
-
地铁
暂无数据
-
咨询总首付
首付约36.1万
首付税费及佣金情况 -
深度测评
小区融城园(怀柔-庙城)
-
更多
楼户比、楼层高度、交易历史、抵押信息
房源描述(1)
-
核心卖点问经纪人
这套位于融城园小区的三居室住宅,建筑面积80.65平方米,采用南北朝向设计,采光通风俱佳。房屋位于6层高层建筑中,1995年建成,房本已满五年,交易税费优惠。 户型为实用的3室1厅1卫1厨1阳台布局,空间利用率高,满足家庭多种生活需求。当前报价125万元,折合单价15499元/平方米,性价比突出。小区地处怀柔庙城镇核心区域,周边生活配套成熟,简装修状态可直接入住或按需改造。
周边配套
交通综合评分
查看全部超过北京41.4%的小区
-
地铁公交
5.0
-
驾车出行
10.0
本月均价 17832元/m²
环比上月 下跌 4.68%
同比去年 下跌 14.66%
猜你喜欢
同小区其它房源
户型齐全,主打户型方正,客厅朝南,双阳台二居
融城园户型主要有79平-79平的户型方正,客厅朝南,双阳台的二居 、105平-106平的户型方正,客厅朝南,双阳台的三居 。
*获取完整户型报告,同时会有免费语音讲解服务
-
20952元/㎡
本月挂牌均价
-
0.35%
环比上月
买房加房产交流群,省钱不踩雷
3000+人正在热聊
- 免费咨询
- 专业服务
- 区域解读
- 户型分析


