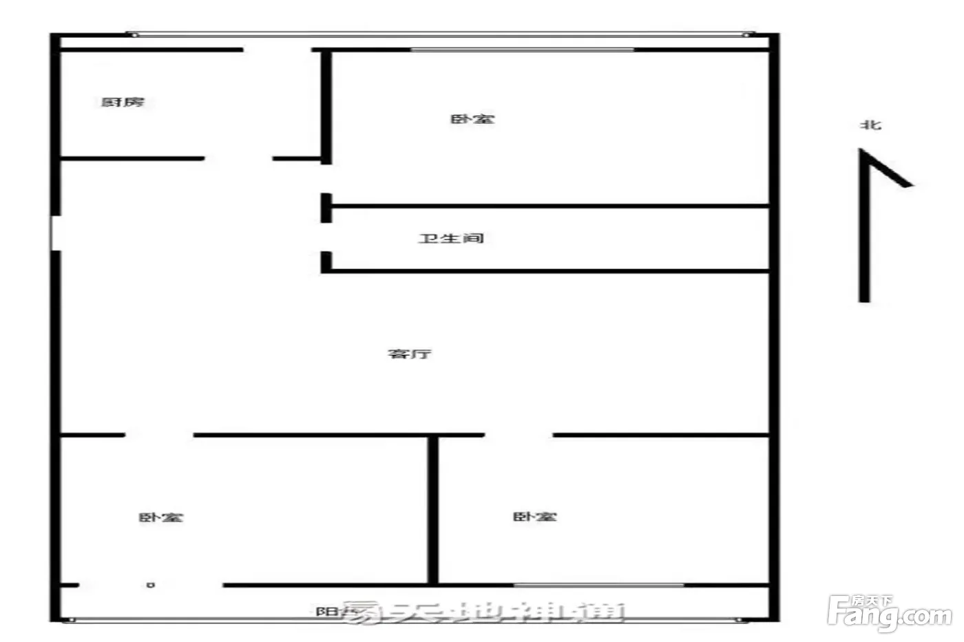
融城园南区 3室1厅 南 北
-
205万
总价
-
3室1厅
户型
-
93.97㎡
建筑面积
买房加房产交流群,省钱不踩雷
3000+人正在热聊
-
单价
21816元/平米
- 挂牌价格解析
-
楼层
中楼层/6层
- 咨询楼层
-
套内
暂无数据
- 咨询套内使用面积
-
楼型
板楼
-
朝向
南北
-
装修
其他
-
供暖
集中供暖
-
发布
2024-06-15
-
地铁
暂无数据
-
咨询总首付
首付约58.7万
首付税费及佣金情况 -
深度测评
小区融城园(怀柔-庙城)
-
更多
楼户比、楼层高度、交易历史、抵押信息
房源描述(1)
-
核心卖点问经纪人
相信为您推荐的这套房子您一定会满意,赶快行动吧,先到先得! 房屋年代∶2005,面积∶93.97平方米,朝向∶南北 1. 小区配备高端物业管理,让你享受宾至如归的服务; 2. 小区人文素质高,是您的居家的绝佳选择; 3. 小区居住安静舒适,让您拥有高品质的生活环境; 4. 小区绿化率高,绿树成荫鸟语花香让您随时呼吸到新鲜空气。
周边配套
交通综合评分
查看全部超过北京41.4%的小区
-
地铁公交
5.0
-
驾车出行
10.0
本月均价 17454元/m²
环比上月 下跌 1.55%
同比去年 下跌 13.06%
猜你喜欢
同小区其它房源
户型齐全,主打户型方正,客厅朝南,双阳台二居
融城园户型主要有79平-79平的户型方正,客厅朝南,双阳台的二居 、105平-106平的户型方正,客厅朝南,双阳台的三居 。
*获取完整户型报告,同时会有免费语音讲解服务
-
20301元/㎡
本月挂牌均价
-
0.98%
环比上月
买房加房产交流群,省钱不踩雷
3000+人正在热聊



