南北通透傲城天乐园2室2厅精装修
-
888万
总价
-
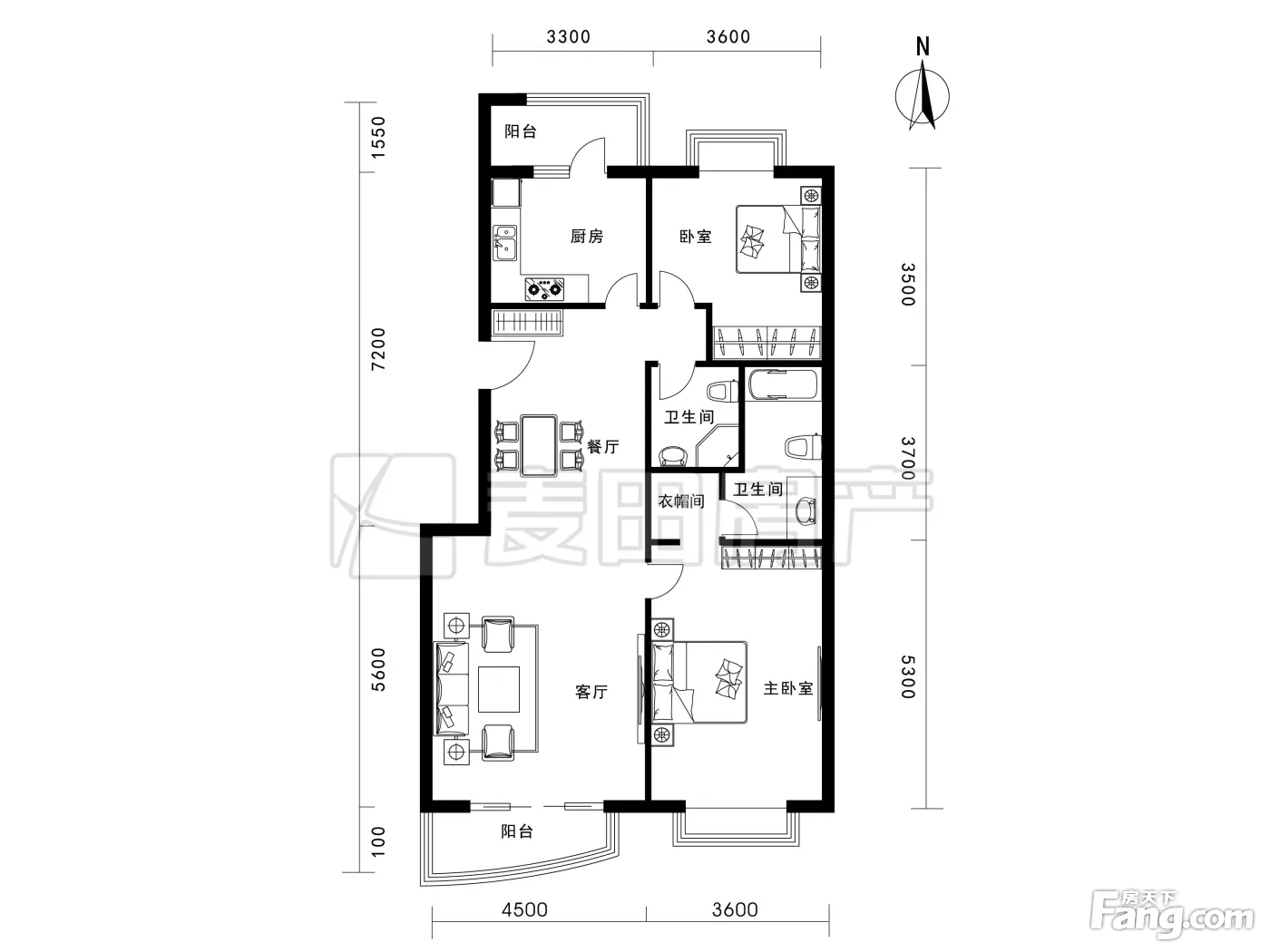
2室2厅2卫
户型
-
128.55㎡
建筑面积
买房加房产交流群,省钱不踩雷
3000+人正在热聊
加入群聊
-
单价
69078元/平米
- 挂牌价格解析
-
楼层
中层/11层
- 咨询楼层
-
套内
暂无数据
- 咨询套内使用面积
-
楼型
板楼
-
朝向
南北
-
装修
精装修
-
年代
2004
-
发布
2025-11-18
-
地铁
距5号线北苑路北站约609米
-
咨询总首付
首付约579.4万
首付税费及佣金情况 -
深度测评
小区傲城天乐园(朝阳-北苑)
-
更多
楼户比、楼层高度、交易历史、抵押信息
房源描述(1)
周边配套
地址:亚运村北苑路68号
交通综合评分
查看全部6.6
“较好”
超过北京97.6%的小区
-
地铁公交
9.0
-
驾车出行
10.0
本月均价 70362元/m²
环比上月 下跌 2.53%
同比去年 下跌 5.38%
猜你喜欢
同小区其它房源
户型齐全,主打户型方正二居
傲城天乐园户型主要有77平-128平的户型方正的二居 、118平-171平的户型方正,明厨的三居 、84平-95平的户型方正,明厨,主卧朝南的一居 。
*获取完整户型报告,同时会有免费语音讲解服务
-
58039元/㎡
本月挂牌均价
-
1.33%
环比上月
买房加房产交流群,省钱不踩雷
3000+人正在热聊
加入群聊
- 免费咨询
- 专业服务
- 区域解读
- 户型分析
免责声明:房源信息由网站用户提供,其真实性、合法性由信息提供者负责,最终以政府部门登记备案为准。本网站不声明或保证内容之正确性和可靠性,购买该房屋时,请谨慎核查。入学情况仅凭历史经验总结,在此不承诺升学事宜。请您在签订合同之前,切勿支付任何形式的费用,以免上当受骗。


