(东三环亮马河畔2居室)(全明格局东西北三面采光)随时可看
-
818万
总价
-
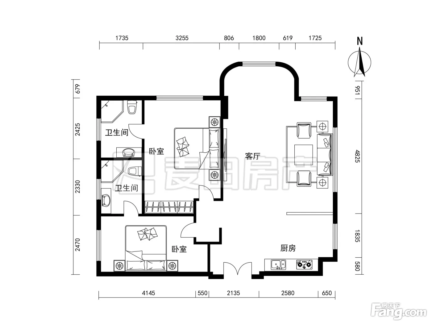
2室2厅2卫
户型
-
118.2㎡
建筑面积
买房加房产交流群,省钱不踩雷
3000+人正在热聊
-
单价
69205元/平米
- 挂牌价格解析
-
楼层
低层/28层
- 咨询楼层
-
套内
暂无数据
- 咨询套内使用面积
-
楼型
板楼
-
朝向
东西北
-
装修
精装修
-
年代
2000
-
发布
2025-12-20
-
地铁
距10号线亮马桥站约588米
-
咨询总首付
首付约425.7万
首付税费及佣金情况 -
深度测评
小区三全公寓(朝阳-朝阳公园)
-
更多
楼户比、楼层高度、交易历史、抵押信息
房源描述(1)
-
核心卖点问经纪人
您好,我是店经理——宋少杰,从业11年,产品力丰富,能高效精准的为您匹配房源,节省您选房购房的时间和精力! 【位置】东三环,亮马河畔南侧,小区位置安静不临街 【房源属性】中低层 118.2平米 东西北3面采光2居室 【装修】业主二次装修,保养不错,可以直接入住 【感受】户型方正,入户门朝南,明厨双明卫,客厅朝东北,大落地窗,视野开阔。次卧室采光好。 【价格】819万 看房随时
-
业主心态问经纪人
【国家2026年房地产工作明确部署】 着力稳定房地产市场,首次明确将:控增量、去库存、优供给 并列作为核心方向; 随着各个利好政策的落地,市场迎来大复苏,近期成交量活跃,好房源成交速度明显加快 【业主卖房情况】 1、业主是我认识多年的老业主。诚意出售,可随时签约; 2、业主一直由我在维护,具体详情,您可以随时电话,24h开机为您服务。 您有任何房产咨询,可欢迎随时拨打我的电话,手机24H开机为您服务,为您买房卖房保驾护航
-
小区配套问经纪人
【三全推荐理由】 【1】小区四周不临街,闹中取静,交通便利,距离东三环200米距离,周边酒店云集、国外人士居多,小区环境幽雅此房月租在:22000元到25000元之间 【2】小区位置佳,配套齐全,出门就是亮马河风情水岸,东行400米到蓝色港湾,500米可进朝阳公园 【3】小区名气高,物业是仲量联行物业,为业主提供贴心的服务,让业主安全,放心,隐私得到保证。
-
服务介绍问经纪人
我是房产店经理-宋少杰,从业11年多,产品力丰富,专业知识扎实,待客真诚,每一位客户找到我,我都以朋友,亲人的立场,为其解决问题,找到合适的房子。感谢您能找到我,我已做好准备为您找到合适的房子。
-
税费分析房贷计算
此房税少,业主这套房子已经满五年了,以家庭为单位,在京就这一套房子。原值高
周边配套
交通综合评分
查看全部超过北京39.7%的小区
-
地铁公交
10.0
-
驾车出行
10.0
本月均价 70721元/m²
环比上月 下跌 1.62%
同比去年 下跌 8.5%
猜你喜欢
同小区其它房源
-
78695元/㎡
本月挂牌均价
-
1.43%
环比上月
买房加房产交流群,省钱不踩雷
3000+人正在热聊
- 免费咨询
- 专业服务
- 区域解读
- 户型分析


