新出:大西洋新城B区 南北通透 使用率高 户型10来套
-
1080万
总价
-
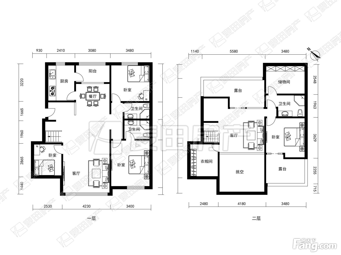
4室2厅3卫
户型
-
198.95㎡
建筑面积
买房加房产交流群,省钱不踩雷
3000+人正在热聊
-
单价
54285元/平米
- 挂牌价格解析
-
楼层
顶层/9层
- 咨询楼层
-
套内
暂无数据
- 咨询套内使用面积
-
楼型
板楼
-
朝向
南北
-
装修
精装修
-
年代
2000
-
发布
2025-11-08
-
地铁
距14号线阜通站约369米
-
咨询总首付
首付约357.5万
首付税费及佣金情况 -
深度测评
小区大西洋新城B区(朝阳-望京)
-
更多
楼户比、楼层高度、交易历史、抵押信息
房源描述(1)
-
核心卖点问经纪人
相信为您推荐的这套房子您一定会满意,赶快行动吧,先到先得! 房屋年代∶2000,面积∶198.95平方米,朝向∶南北 1. 小区配备高端物业管理,让你享受宾至如归的服务; 2. 小区人文素质高,是您的居家的绝佳选择; 3. 小区居住安静舒适,让您拥有高品质的生活环境; 4. 小区绿化率高,绿树成荫鸟语花香让您随时呼吸到新鲜空气。
-
业主心态问经纪人
业主诚心卖,人也非常和蔼,对市场行情也都比较清楚,没想赚高价,能卖掉就行,价格可以商量,接受面议
-
小区配套问经纪人
大西洋新城小区地处北四环、北五环、京承高速和机场高速围合而成的望京商圈,建成时间在1999-2000年,北侧是地铁望京站,南侧是阜通站,东侧有凯德mall购物广场,户型多样,小到86平两居,大到289平的四居。大西洋新城B区绿化丰富,环境清幽,物业周到,品质极好。小区绿化植被多,内部花草丰富,高低植被错落分布,还有大面积人工湖供住户游玩观赏。小区户型南北通透,都带有阳台,一层还配有,生活惬意。此外小区内有游泳池、健身房等生活休闲配套。小区品质可以作为改善群体的关注目标之一,在整个望京商圈也属于高品质住宅区。
-
服务介绍问经纪人
本人从事这个行业14年,一直在望京,周边的东北三环、亚运村也都比较熟悉,业务上以人为本,诚信做人做事,踏踏实实做好自己,如果您不买房只是需要咨询问题,也可以随时咨询我。
-
税费分析房贷计算
此房满五年,只需要交一个契税;分140平上下浮动,如果是140平米以下的房源,首套和二套都是一个点的契税;140平米以上的是首套1.5的契税2套是2个点契税。
-
户型解读问经纪人
户型方正,客厅有40平米 两个卫生间都是明的 采光视野好
周边配套
交通综合评分
查看全部超过北京86.1%的小区
-
地铁公交
10.0
-
驾车出行
10.0
本月均价 65108元/m²
环比上月 下跌 4.53%
同比去年 下跌 16.1%
猜你喜欢
同小区其它房源
户型齐全,主打户型方正,明厨,客厅朝南,双卧朝南,主卧朝南三居
大西洋新城B区户型主要有115平-199平的户型方正,明厨,客厅朝南,双卧朝南,主卧朝南的三居 、134平-189平的户型方正,明卫,明厨,客厅朝南,双卧朝南,独立衣帽间的四居 、87平-94平的明厨,客厅朝南的二居 。
*获取完整户型报告,同时会有免费语音讲解服务
-
61308元/㎡
本月挂牌均价
-
1.97%
环比上月
买房加房产交流群,省钱不踩雷
3000+人正在热聊
- 免费咨询
- 专业服务
- 区域解读
- 户型分析


