国贸CBD 长安街 建 独栋 商办写字楼出售!
-
84675万
总价
-
简装修
装修
-
10855.7㎡
建筑面积
买房加房产交流群,省钱不踩雷
3000+人正在热聊
加入群聊
-
楼层
底层/12层
-
单价
78000元/平米
-
楼盘名称
建国门独栋
-
区域
朝阳
-
使用面积
9770.11㎡
-
物业费
20元/平米·月
-
类型
纯写字楼
-
等级
甲级
-
挂牌时间
2025-07-04
房源描述(1)
-
核心卖点问经纪人
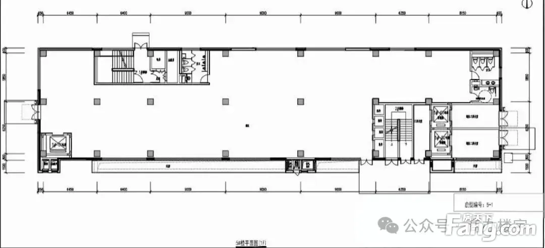
项目名称:建独栋写字楼出售建筑面积:10855.68㎡?出售报价:面议出售楼层:共13层?楼层分布:首层为大堂?面积约为:509.46㎡,2层为50年791.56㎡,3-13层为50年?每层建筑面积约:914.92㎡?共计面积约为:10064.12㎡。?1-12层每层4.2米,13层为4.5米。本楼地下一层为设备层,地下二层和地下??五层为车位和仓储。均为现代风格,定制陶板+超白玻璃+阳极氧化铝金属材质;独特设计:二层和的大堂进行分设,方便使用及管理大门设有门斗,更舒适。约18㎡每层设独立卫生间2层预留油烟井道,适合多种业态经营。设置专属楼梯,便于管理及疏散
-
服务介绍问经纪人
本人从事房地产多年,客户的满意是我的职业追求,我相信,拥有专业的知识及真诚的服务才能为客户找到满意房源。
-
周边配套问经纪人
周边生活设施齐全,具备车库/车位等基础设施,商店距离近,乘坐公交方便。
-
交通出行问经纪人
建地区,在短短几十年间,经历了从荒凉到繁华的巨变,成为了北京的国际化商圈。这里不仅汇聚了区、外交和友谊商店等标志性地点,更见证了北京的崛起与变迁。要理解北
周边配套
交通综合评分
查看全部8.3
“较好”
超过北京62.6%的小区
-
地铁公交
10.0
-
驾车出行
10.0
-
城际交通
4.5
猜你喜欢
同小区其它写字楼
- 免费咨询
- 专业服务
- 区域解读
- 户型分析
免责声明:房源信息由网站用户提供,其真实性、合法性由信息提供者负责,最终以政府部门登记备案为准。本网站不声明或保证内容之正确性和可靠性,购买该房屋时,请谨慎核查。入学情况仅凭历史经验总结,在此不承诺升学事宜。请您在签订合同之前,切勿支付任何形式的费用,以免上当受骗。

