海淀北 双地铁昌平线8号线朱辛庄站,精装现房,1至4居全户型
-
610万
总价
-
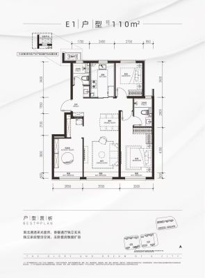
3室2厅2卫
户型
-
110㎡
建筑面积
买房加房产交流群,省钱不踩雷
3000+人正在热聊
-
单价
55455元/平米
- 挂牌价格解析
-
楼层
低层/6层
- 咨询楼层
-
套内
93.5㎡
- 咨询套内使用面积
-
朝向
南北
-
装修
简装修
-
年代
2025
-
发布
2026-01-03
-
地铁
距8号线朱辛庄站约876米
-
咨询总首付
首付约299.5万
首付税费及佣金情况 -
深度测评
小区越秀·星樾(昌平-回龙观)
-
更多
楼户比、楼层高度、交易历史、抵押信息
房源描述(1)
-
核心卖点问经纪人
【未来规划】社区配备了如访客系统、可是对讲系统、周界防范报警系统等智能设备,提便捷度与安全性小区有明确的围墙和大门等边界,便于物业对于人员及车辆进出小区进行管理,提安全感【其他描述】物业:为龙湖自持物业,物业费5.95/月/㎡,同类型物业属于中等偏上车位:地上0个车位,地下1063个车位,成为配比1:1.2,人车分流【户型楼栋】项目户型涵盖77-129㎡,2-4居,项目为非毛坯交房,具体交房标准可点击头像了解更多房源信息住宅:3米/2.97米层数:洋房5-11曾/小高17-18层:30%【小区设施】人车分流,小区道路行人与车辆分离,互不干扰降低停车
-
业主心态问经纪人
无任何费用,无偿提供咨询,陪同看房。 您的满意就是我的动力,公司有大量新房楼盘,为您而选,为您安家。 我会让您短时间内选到您满意的房源,欢迎您随时拨打电话咨 询。
-
小区配套问经纪人
小区地理位置佳,绿化环境优越整洁,居民素质高,物业管理完善,适宜
-
服务介绍问经纪人
本人做房产多年,一直本着专业的房产知识,为您服务,我会在短的时间内帮您买好满意的房子,不让您错失任何好房子,更不让您每天为买房的事烦心,欢迎随时拨打我电话。
-
税费分析房贷计算
关于本房的税费信息情况,请电话联系我,我将详细的为您讲解!
-
户型解读问经纪人
1.实景现房,高颜品质可见 园景家境身临实鉴,户户样板,品质分毫尽显 2.高,超越生活边界 高,更多实用空间,拓展无限可能 3.双轨交汇,两站速抵西二旗 8号线/昌平线交汇朱辛庄,速达海淀腹地 4.家境已成,今年买明年住 2025年交房,减少租房成本,美好无需等待 5.国企越秀,稳健硬核实力 国企越秀地产,自持优质物业,用心兑现美好 6.成长空间,适配多样人生 一至四居全龄户型,致敬人生不同阶段精彩
周边配套
本月均价 59822元/m²
环比上月 下跌 0.52%
同比去年 下跌 3.21%
户型齐全,主打南北通透,户型方正三居
越秀·星樾户型主要有77平-108平的南北通透,户型方正的三居 、63平-110平的户型方正,卧室朝南的二居 、52平-60平的户型方正,卧室朝南的一居 。
*获取完整户型报告,同时会有免费语音讲解服务
-
40851元/㎡
本月挂牌均价
-
1.03%
环比上月
买房加房产交流群,省钱不踩雷
3000+人正在热聊
- 免费咨询
- 专业服务
- 区域解读
- 户型分析


