找我优惠:清盘剩2套,515平1709万,628平2300
-
1709万
总价
-
5室4厅5卫
户型
-
615㎡
建筑面积
买房加房产交流群,省钱不踩雷
3000+人正在热聊
-
单价
27789元/平米
- 挂牌价格解析
-
楼层
2层
- 咨询楼层
-
套内
614㎡
- 咨询套内使用面积
-
楼型
独栋
-
朝向
北
-
装修
毛坯
-
年代
2025
-
发布
2025-11-12
-
咨询总首付
首付约580.5万
首付税费及佣金情况 -
深度测评
小区北辰红橡墅(昌平-北七家)
-
更多
楼户比、楼层高度、交易历史、抵押信息
房源描述(1)
-
核心卖点问经纪人
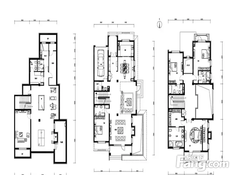
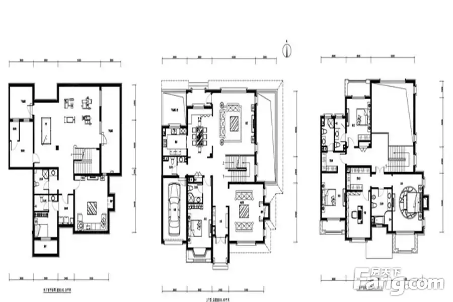
重要提示(您浏览的网页版微聊)正在升级,无法及时收到信息,请直接拨打电话,24在线接听! 联系我,省时省力又省钱,带您买到优惠价房1861.0.5.0.8511 北辰红橡墅 - 奥北临河别墅,本月已成交2套 单层面积200 - 260㎡ ,一层、二层 层高3.7米,地下3.3米,挑空9.9米 独栋628㎡(N),花院:300 - 400多㎡总价:2300萬 双拼515㎡(H),花院:100 - 300多㎡ ,总价:1709萬 【天然墅地】1条温榆河、1座原生湿地、2侧千米绿带、约2.5万㎡原生树林、约40万㎡绿化面积、多个公园为伴。 【交通提速】5横4纵4轨道的立体式交通路网,快速亚奥和望京等核心商圈,都会繁华与栖居诗意从容切换。 【聚享繁华】快速通达龙德商圈、亚奥商圈、望京商圈3大醇熟商圈,荟萃一城繁华,聚享奥北墅区时尚生活圈。 【随享休闲】佣享多个高尔夫球场以及酒会、马术等高端俱乐部,打造集热爱与格调于一体的休闲生活场域,随享休闲生活,品味高雅风尚。
-
业主心态问经纪人
业主诚意出售,给换房周期,接受贷款,非常优质。
-
小区配套问经纪人
一、中轴藏墅 温榆私境 中轴之上, 踞守温榆河绿色生态岸线 是北京稀有在售临河别墅群落
-
服务介绍问经纪人
您好, 主做北七家 小汤山,沙河。顺义朝阳等, 北京一手房项目全部合作,有需求欢迎致电咨询,24为您服务 韩丽,买房找我,省时又省力。
-
税费分析房贷计算
关于本房的税费信息情况,请电话联系我,我将详细的为您讲解!
-
户型解读问经纪人
房屋拥有相对宽松的尺寸,布局通透,动静分离,设计豪华
周边配套
交通综合评分
查看全部超过北京94.9%的小区
-
地铁公交
5.0
-
驾车出行
9.0
猜你喜欢
同小区其它房源
-
36416元/㎡
本月挂牌均价
-
2.92%
环比上月
买房加房产交流群,省钱不踩雷
3000+人正在热聊
- 免费咨询
- 专业服务
- 区域解读
- 户型分析

