东五环独栋别墅 新房现房 运河CBD 找我享优惠 看房方便
-
2999万
总价
-
4室2厅4卫
户型
-
418㎡
建筑面积
买房加房产交流群,省钱不踩雷
3000+人正在热聊
-
单价
71746元/平米
- 挂牌价格解析
-
楼层
6层
- 咨询楼层
-
套内
417㎡
- 咨询套内使用面积
-
楼型
独栋
-
朝向
南
-
装修
简装修
-
年代
2006
-
发布
2025-05-09
-
地铁
距6号线物资学院路站约1002米
-
咨询总首付
首付约992.6万
首付税费及佣金情况 -
深度测评
小区长安府(通州-北关)
-
更多
楼户比、楼层高度、交易历史、抵押信息
房源描述(1)
-
核心卖点问经纪人
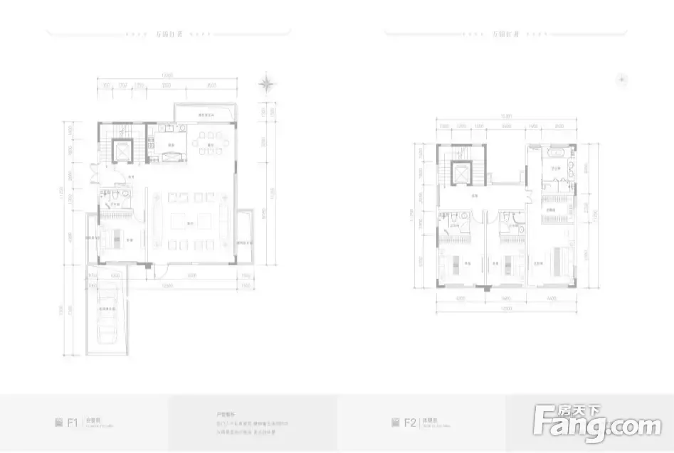
本次开共20栋,其中红砖14栋、石材6栋 红砖幕墙上二下一,单层面积150㎡ 石材幕墙上三下一,单层面积150㎡ 配套设施: 名优医疗护航 坐享运河商务区的中心医疗配套 约3.8公里北京胸科医院 约5公里首都医科大学附属北京友谊医院(通州院区) 约6.2公里遵河医院 约9公里安贞医院(在建) 约27公里北京大学人民医院(通州院区) 艺术生活同频 在区域生活内卓越美术馆,安美术馆,晓景美术馆周智慧个人艺术馆、城市副中心图书馆、龙缘马术俱乐部蓝调薰衣草庄园,北京晓景园林高尔夫球场大运高尔夫俱乐部等项目 繁华商业近享叙写生活的底色 约2.2公里远洋乐堤港,约5公里长盈天街 约3.3公里新光大中心7约4.7公里合景泰富悠方天地约5.3公里通州万达/约5.3公里富力中心 国际 约4.8公里湖河国际教育学园/约9.6公里北京爱迪国际/约8公里北京市私立树人瑞贝/约6.2公里北京中加 约11公里北京赫德(东坝校区)/约10公里凯文国际/约17公里北京德威英国国际 私立 约900米台湾金雅国际/约20公里北京杨梅红国际私立美校/约11公里北京爱迪 公立 约900米物资学院/约41公里通州第四/约8.9公里中(朝阳分校东坝校区) 约11公里皇城根(通州校区)/约21公里北京工业大学(通州校区) 户型介绍: 05-1户型 红砖幕墙特色 ——设计理念 红砖做为古老的建筑材料,代表着文化的沉淀、历史的延续,其独有的材料属性可为文化建筑赋子独特的个性 结合天然大理石材的特性村托红砖错落有致的特色,让城市的灯火阑珊与历史的古韵美学融合
-
业主心态问经纪人
我是孙燕令,您的置业顾问。主打:真实可靠专业。从事房地产工作12年之久,主做:住宅,别墅,商业,写字楼买卖。非常感恩所做支持的朋友们!熟知北京各类房产业态,为您解答楼市 动态及楼盘信息。深知买房是件非常重要的事情,我会不留余力为您筛选解答,尽 努力为您一站式购房保驾护航,让您 度体会到:省时,省心,省力,省钱! 找我开始沟通吧,在 短的时间内为您找到满意的家。 可联动带看多个楼盘,全程陪同讲解。格拉斯 缦云 北京宸园 北京国贤府,温哥华森林,天樾书院,国瑞樾墅,福熙大道,紫金书院,建发观云等多个项目。
-
小区配套问经纪人
小区地理位置佳,绿化环境优越整洁,居民素质高,物业管理完善,适宜居住
-
服务介绍问经纪人
本人做房产多年,一直本着专业的房产知识,为您服务,我会在短的时间内帮您买好满意的房子,不让您错失任何好房子,更不让您每天为买房的事烦心,欢迎随时拨打我电话。
-
税费分析房贷计算
关于本房的税费信息情况,请电话联系我,我将详细的为您讲解!
-
户型解读问经纪人
房屋拥有相对宽松的尺寸,布局通透,动静分离,设计豪华
周边配套
-
31535元/㎡
本月挂牌均价
-
2.92%
环比上月
买房加房产交流群,省钱不踩雷
3000+人正在热聊
- 免费咨询
- 专业服务
- 区域解读
- 户型分析


