朝阳国贸,中国尊旁,现房特价房源,立省400W,优惠到底!
-
1420万
总价
-
2室2厅2卫
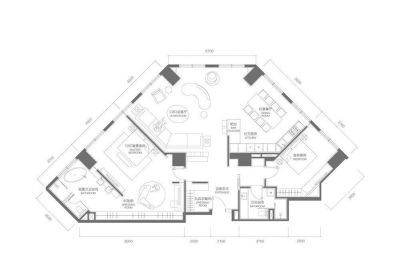
户型
-
145㎡
建筑面积
买房加房产交流群,省钱不踩雷
3000+人正在热聊
-
单价
97931元/平米
- 挂牌价格解析
-
楼层
底层/1层
- 咨询楼层
-
套内
127.6㎡
- 咨询套内使用面积
-
楼型
板楼
-
朝向
南北
-
装修
精装修
-
年代
2024
-
发布
2025-11-28
-
地铁
距1号线(八通线)国贸站约567米
-
咨询总首付
首付约482.7万
首付税费及佣金情况 -
深度测评
小区阳光城·梵悦108(朝阳-国贸)
-
更多
楼户比、楼层高度、交易历史、抵押信息
房源描述(1)
-
核心卖点问经纪人
地理位置: 国贸便利交通及优越配套:与中国尊隔路相望,出门即上三环,位于各大商务区中,去往燕莎、东直门、丽都、金融街等都便利。在配套上,步行即可逛银泰百货、国贸商城、千禧大酒店、三里屯、北京SKP;享各国美食,各式美味中餐。 交通优势: 坐在家里就可以对望新央视、中国尊,欣赏国贸美丽的夜景:在这里可以深深体会到首都国际化大都市的繁华,感受新央视、中国尊的中国伟大壮观,体会夜幕下国贸夜景。通惠河的水系伴着车水马龙的街道,一静一动,享受别致景观。 配套优势: 社区外部与内部配套齐,生活更便捷舒适:国贸桥边,享受CBD全部配套;距离中国尊420米,身处410万平全球国际金融城配套内;
-
业主心态问经纪人
①.我是销售经理张海青,是开发商委托宣传销售,不收任何费用。 ②.22年房产从业经验,为您购房提供专业的建议。 ③.全北京的新房项目,联系我即可得到所有项目,为您高效找房。 ④.尊重同行,尊重客户,诚实守信,不会随意打扰客户。 ⑤.全程陪同看房,不收任何形式的费用
-
小区配套问经纪人
小区地理位置好,配套设施齐全,交通便利,居民素质高。
-
服务介绍问经纪人
我从事房产行业多年,积累了大量的专业知识,也得到了业主、客户的信赖和认可,为您买到合适的房子是我的服务宗旨。
-
税费分析房贷计算
产权干净,税费清晰,欢迎来电咨询该房屋详情,静候您的来电!
周边配套
本月均价 103085元/m²
环比上月 下跌 0.82%
同比去年 下跌 11.52%
猜你喜欢
同小区其它房源
户型齐全,主打南北通透,户型方正一居
阳光城·梵悦108户型主要有97平-182平的南北通透,户型方正的一居 、145平-260平的全明格局,户型方正的二居 。
*获取完整户型报告,同时会有免费语音讲解服务
-
66771元/㎡
本月挂牌均价
-
1.55%
环比上月
买房加房产交流群,省钱不踩雷
3000+人正在热聊
- 免费咨询
- 专业服务
- 区域解读
- 户型分析


