新上临湖独栋别墅开发商出售购买现房发售有实景拍摄参考!
-
720万
总价
-
5室3厅4卫
户型
-
280㎡
建筑面积
买房加房产交流群,省钱不踩雷
3000+人正在热聊
加入群聊
-
单价
25714元/平米
- 挂牌价格解析
-
楼层
6层
- 咨询楼层
-
套内
279㎡
- 咨询套内使用面积
-
楼型
独栋
-
朝向
南
-
装修
毛坯
-
年代
2011
-
发布
2025-02-11
-
咨询总首付
首付约244.4万
首付税费及佣金情况 -
深度测评
小区北京半岛(房山-青龙湖)
-
更多
楼户比、楼层高度、交易历史、抵押信息
房源描述(1)
-
核心卖点问经纪人
核心 北京独栋墅作,三面环水观湖,两面环山。 背依西山山脉,独享6000青龙湖, 一线湖景,更有超大任你尽享四季光景,满足您对生活的无热爱! 地址:北京房山青龙湖 交房时间:现房!现房!现房!重要的事情说三遍 配套:酒店健康中心,游船俱乐部,丹世红酒,低空飞行俱乐部、京辉高尔夫
-
业主心态问经纪人
房东置换,诚心出售,欢迎看房,随时恭候您的电话。
-
小区配套问经纪人
小区地理位置佳,绿化率高,环境整洁,居民素质高。 .
-
服务介绍问经纪人
本人从事房产行业多年,有着丰富的从业经验,熟悉小区各种户型,了解小区周围配套及未来发展规划,为您购房合理科学的设计购房规划。本人从业期间,熟练办理商业,公积金,组合,转按揭等各种复杂交易,而且本人热情
-
税费分析房贷计算
关于本房税费分析详情,请电话联系我,我将提供详细的税费情况。
-
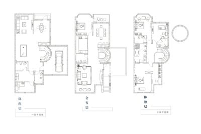
户型解读问经纪人
房屋拥有相对宽松的尺寸,布局通透,动静分离,设计豪华
周边配套
地址:西六环长青路出口,青龙湖公园西侧
交通综合评分
查看全部5.0
“一般”
超过北京94.1%的小区
-
地铁公交
5.0
-
驾车出行
10.0
猜你喜欢
同小区其它房源
户型齐全,主打南北通透,餐客分离四居
北京半岛户型主要有227平-290平的南北通透,餐客分离的四居 、392平-397平的南北通透,餐客分离的五居 。
*获取完整户型报告,同时会有免费语音讲解服务
-
19145元/㎡
本月挂牌均价
-
1.11%
环比上月
买房加房产交流群,省钱不踩雷
3000+人正在热聊
加入群聊
- 免费咨询
- 专业服务
- 区域解读
- 户型分析
免责声明:房源信息由网站用户提供,其真实性、合法性由信息提供者负责,最终以政府部门登记备案为准。本网站不声明或保证内容之正确性和可靠性,购买该房屋时,请谨慎核查。入学情况仅凭历史经验总结,在此不承诺升学事宜。请您在签订合同之前,切勿支付任何形式的费用,以免上当受骗。


